Описание объекта лот №: 973061
| Возможное использование: | Свободное назначение Банки Магазины Офисы Шоурумы |
| Операция: | Аренда |
| Тип аренды: | Прямая аренда |
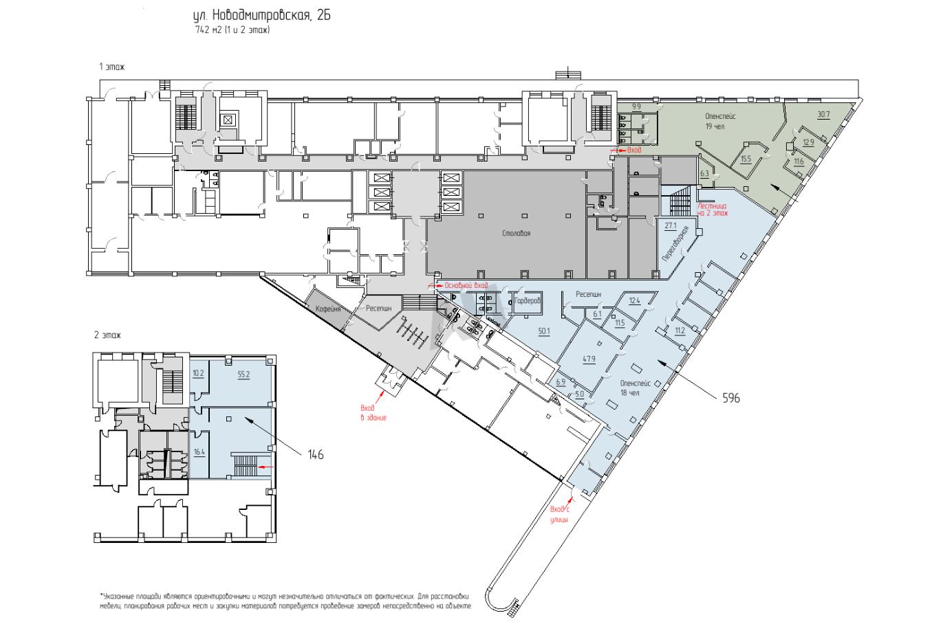
| Площадь: | 742 кв. м |
| Этаж: | 1 - 2-й |
| Местоположение | |
| Округ: | САО |
| Метро: | Дмитровская, Бутырская, Савеловская |
| От метро: | 6 мин. пешком |
| Улица: | Новодмитровская ул |
| ИФНС | № 7715 |
| Стоимость и условия | |
| Цена: | 2 906 167 руб. в месяц 47 000 руб. за 1м2 в год Сообщить о снижении цены ![]() |
| Форма налогообложения собственника: | НДС |
| Обеспечительный платеж: | 2 месяца |
| Эксплуатационные расходы включены: | ✓ |
| Характеристики | |
| Тип здания: | Бизнес центры класса B |
| Отдельный вход: | ✓ |
| Этажность здания: | 9 |
| Наличие кондиционирования: | ✓ |
| Наличие лифта: | ✓ |
| Наличие пропускной системы: | ✓ |
| Наличие общепита в здании: | ✓ |
| Тип окон: | обычные |
| Описание | |
|
Лот №973061 Сдается помещение свободного назначения, отдельный вход с улицы. Общая площадь 742 кв.м. Идеально подойдет под клиентский офис, шоу рум, магазин. Возможно размещение вывески на фасаде. Смешанная планировка. Открытые пространства, переговорные, кухня для сотрудников, сан узлы. Современные инженерные коммуникации. Подземный 2-уровневый паркинг, наземный 60 м/м подземный 90 м/м 25 000 р./месяц за 1 м/м. Корпоративная Столовая для сотрудников, кафе и магазины, банкоматы. Метро Дмитровская в шаговой доступности. ТТК 800м. Садовое кольцо - 4.5 км. МКАД - 16 км. Рядом с объектом расположены: МФК Савеловский сити - площадь застройки 278 000 кв.м. квартиры, апартаменты, офисы. Застройщик MR GROUP, ЖК ШЕРЕМЕТЬЕВСКИЙ - комплекс из 15 жилых домов, три детских сада, школа, поликлиника и подземные паркинги. Metro Cash & Carry -центр мелкооптовой торговли с режимом работы 24/7. Деловой центр Гульден - офисное и выставочное пространство. Российская медиакомпания № 1 "АКТИОН МЦФЭР - деловая активность. Хлебзавод № 9 - культурно развлекательный центр. Дизайн завод флакон - торгово/выставочный и офисный комплекс более 25 000 кв.м. Стоимость аренды: 47 000 руб/м2/год (2 906 167 руб. в месяц). В цену включено: эксплуатационные расходы. В цену не включено: затраты на электричество, коммунальные расходы, уборка.
Чтобы получить ПОДРОБНУЮ ПРЕЗЕНТАЦИЮ С ПЛАНИРОВКОЙ И ФОТОГРАФИЯМИ на этот объект, звоните. Высылаем в течение 15 минут по запросу! |
|
| Контактная информация | |
| Лот №: | 973061 |
| Контактное лицо: | Дмитрий Викторович |
| Телефон: | 8 (495) 822-78-71 доб.220 |


