Описание объекта лот №: 973010
| Возможное использование: | Свободное назначение Аптеки Банки Бытовые услуги Магазины Медцентры Офисы Салоны красоты Шоурумы Новостройки |
| Операция: | Продажа |
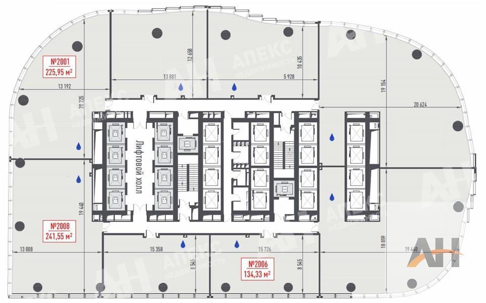
| Площадь: | 134.3 кв. м |
| Этаж: | 20 |
| Местоположение | |
| Округ: | ЦАО |
| Метро: | Шелепиха (МЦК), Тестовская (МЦД), Международная |
| Улица: | Шелепихинский туп |
| ИФНС | № 7703 |
| Стоимость и условия | |
| Цена: |
88 523 470 руб. Сообщить о снижении цены
|
| Характеристики | |
| Тип здания: | Жилые дома |
| Этажность здания: | 64 |
| Наличие лифта: | ✓ |
| Наличие паркинга: | ✓ |
| Электрическая мощность, кВт: | 26 |
| Срок сдачи: | 2029 г. (4 кв.) |
| Описание | |
|
Лот №973010 Продается коммерческое помещение общей площадью 134,33 кв. м., расположенное на 20 этаже бизнес-класса в комплексе Top Tower. Объект относится к первой очереди строительства, корпус 1. Здание является 64-этажным и находится по адресу: Шелепихинский тупик, дом 17/1. Помещение имеет свободное функциональное назначение, что позволяет адаптировать его под широкий спектр видов деятельности. Оно идеально подойдет для организации медицинского центра, салона красоты, парикмахерской, офиса, ресторана, бара, банка, предприятий бытового обслуживания, торговых точек или магазина. Сдача объекта в эксплуатацию запланирована на четвертый квартал 2029 года. Дополнительным преимуществом является высота потолков, составляющая 3,90 метра, что создает благоприятное пространственное восприятие и расширяет возможности для планировки и дизайна интерьера.
Чтобы получить ПОДРОБНУЮ ПРЕЗЕНТАЦИЮ С ПЛАНИРОВКОЙ И ФОТОГРАФИЯМИ на этот объект, звоните. Высылаем в течение 15 минут по запросу! |
|
| Доп. услуги: | - возможна продажа в кредит |
| Контактная информация | |
| Лот №: | 973010 |
| Контактное лицо: | НОВОСТРОЙКИ |
| Телефон: | 8 (495) 822-78-71 доб.211 |


