Описание объекта лот №: 972963
| Возможное использование: | Свободное назначение Аптеки Банки Бытовые услуги Магазины Медцентры Офисы Салоны красоты Шоурумы Новостройки |
| Операция: | Продажа |
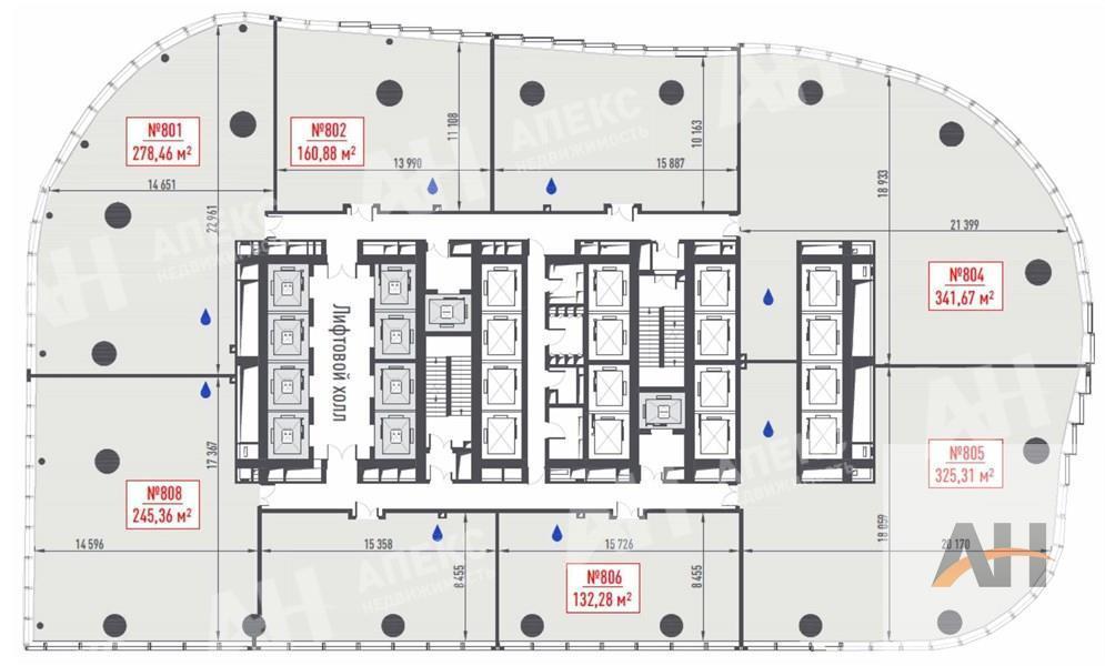
| Площадь: | 132.3 кв. м |
| Этаж: | 8 |
| Местоположение | |
| Округ: | ЦАО |
| Метро: | Шелепиха (МЦК), Тестовская (МЦД), Международная |
| Улица: | Шелепихинский туп |
| ИФНС | № 7703 |
| Стоимость и условия | |
| Цена: |
76 722 400 руб. Сообщить о снижении цены
|
| Характеристики | |
| Тип здания: | Жилые дома |
| Этажность здания: | 64 |
| Наличие лифта: | ✓ |
| Наличие паркинга: | ✓ |
| Электрическая мощность, кВт: | 26 |
| Срок сдачи: | 2029 г. (4 кв.) |
| Описание | |
|
Лот №972963 Предлагается к продаже коммерческое помещение общей площадью 132,28 кв. м, расположенное на 8 этаже в комплексе Top Tower (1 очередь, корпус 1). Объект находится по адресу: Шелепихинский тупик, дом 17/1. Здание является новостройкой, общее количество этажей в комплексе — 64. Помещение обладает универсальным свободным назначением, что позволяет использовать его для широкого спектра видов деятельности. Возможные варианты размещения включают медицинский центр, салон красоты, парикмахерскую, офис, ресторан, бар, банк, предприятия бытового обслуживания, а также торговые точки и магазины. Срок сдачи объекта в эксплуатацию запланирован на четвертый квартал 2029 года. Важным преимуществом помещения являются высокие потолки, достигающие 3,90 метра, что создает дополнительные возможности для планировки и организации пространства.
Чтобы получить ПОДРОБНУЮ ПРЕЗЕНТАЦИЮ С ПЛАНИРОВКОЙ И ФОТОГРАФИЯМИ на этот объект, звоните. Высылаем в течение 15 минут по запросу! |
|
| Доп. услуги: | - возможна продажа в кредит |
| Контактная информация | |
| Лот №: | 972963 |
| Контактное лицо: | НОВОСТРОЙКИ |
| Телефон: | 8 (495) 822-78-71 доб.211 |


