Описание объекта лот №: 971767
| Возможное использование: | Офисы |
| Операция: | Аренда |
| Тип аренды: | Прямая аренда |
| Площадь: | 161.3 кв. м |
| Этаж: | 1 |
| Местоположение | |
| Округ: | ЮАО |
| Метро: | Пражская, Южная, Покровское (МЦД) |
| От метро: | 9 мин. пешком |
| Улица: | Подольских Курсантов ул |
| ИФНС | № 7726 |
| Стоимость и условия | |
| Цена: | 295 999 руб. в месяц 22 021 руб. за 1м2 в год Сообщить о снижении цены ![]() |
| Обеспечительный платеж: | 1 месяц |
| Коммунальные услуги включены: | ✓ |
| Эксплуатационные расходы включены: | ✓ |
| Характеристики | |
| Тип здания: | Бизнес центры класса C |
| Этажность здания: | 3 |
| Наличие кондиционирования: | ✓ |
| Наличие пропускной системы: | ✓ |
| Наличие общепита в здании: | ✓ |
| Тип окон: | обычные |
| Описание | |
|
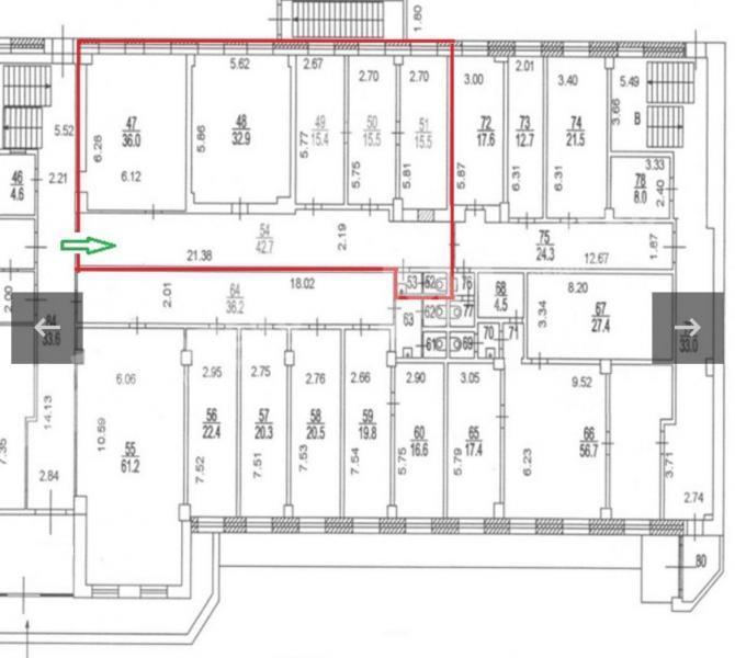
Лот №971767 Предлагается в аренду офис, общей площадью 161.3 кв.м. Кабинетная планировка. Санузел в блоке. Требуется косметика(арендные каникулы обсуждаются). Предоставляем юр.адрес(за дополнительную плату), ИФНС-26. 1 этаж (без лифта). Интернет, телефония. В здании круглосуточная охрана, пропускной режим работы. Столовая, магазин. Заключается прямой договор аренды. Стоимость аренды: 22 021 руб/м2/год (295 999 руб. в месяц). В цену включено: коммунальные расходы, эксплуатационные расходы. В цену не включено: затраты на электричество, уборка.
Чтобы получить ПОДРОБНУЮ ПРЕЗЕНТАЦИЮ С ПЛАНИРОВКОЙ И ФОТОГРАФИЯМИ на этот объект, звоните. Высылаем в течение 15 минут по запросу! |
|
| Контактная информация | |
| Лот №: | 971767 |
| Контактное лицо: | Вадим Вадимович |
| Телефон: | 8 (495) 822-78-71 доб.250 |


