Описание объекта лот №: 971663
| Возможное использование: | Офисы |
| Операция: | Аренда |
| Тип аренды: | Прямая аренда |
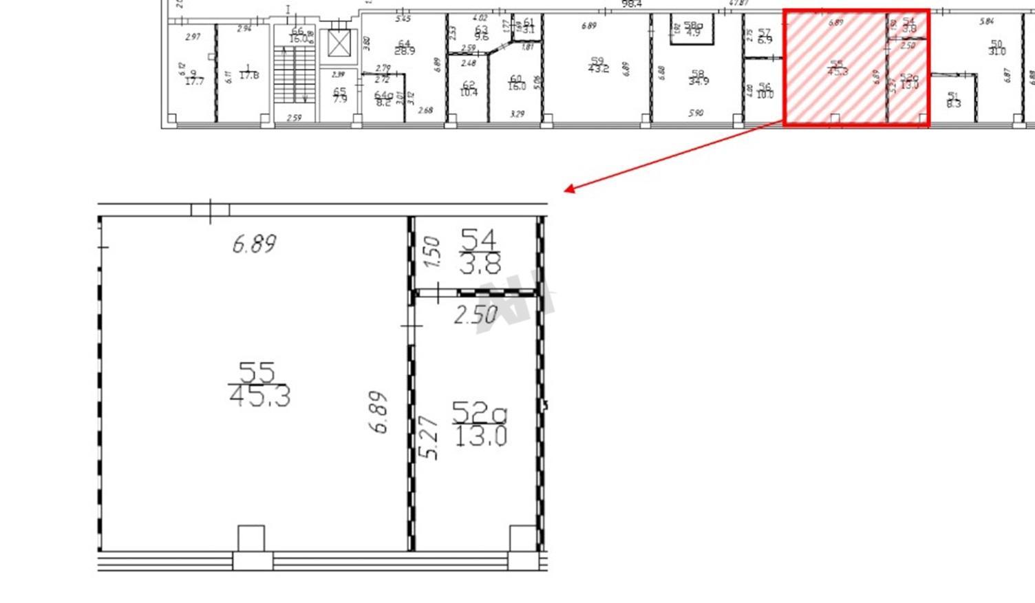
| Площадь: | 74.5 кв. м |
| Этаж: | 3 |
| Местоположение | |
| Округ: | ЮВАО |
| Метро: | Нижегородская (МЦК), Стахановская, Новохохловская (МЦК) |
| От метро: | 6 мин. пешком |
| Улица: | Рязанский пр-кт |
| ИФНС | № 7721 |
| Стоимость и условия | |
| Цена: | 103 474 руб. в месяц + НДС 16 667 руб. за 1м2 в год + НДС Сообщить о снижении цены ![]() |
| Форма налогообложения собственника: | НДС |
| Обеспечительный платеж: | 1 месяц |
| Коммунальные услуги включены: | ✓ |
| Эксплуатационные расходы включены: | ✓ |
| Характеристики | |
| Тип здания: | Бизнес центры класса B |
| Этажность здания: | 5 |
| Наличие кондиционирования: | ✓ |
| Наличие лифта: | ✓ |
| Наличие пропускной системы: | ✓ |
| Круглосуточный доступ: | ✓ |
| Наличие паркинга: | ✓ |
| Наличие общепита в здании: | ✓ |
| Тип окон: | обычные |
| Описание | |
|
Лот №971663 Предлагается в аренду офисное помещение на 3-ем этаже 74.52 м2 в бц класса В в шаговой доступности от метро. Хороший ремонт : Полы: ламинат, плитка. Стены: ГКЛ, стеклообои с в/э окраской. Потолок: подвесной типа «Армстронг», высота 2,7м -3,0 м. Инженерные системы: п/в вентиляция, центральное кондиционирование. Сан.узлы на этаже. Лифты: 2 панорамных и 3 пассажирских лифта Инженерные системы: приточно-вытяжная вентиляция, центральное кондиционирование Безопасность: круглосуточная охрана, видеонаблюдение, СКУД, система автоматической пожарной сигнализации, система голосового оповещения, система водяного пожаротушения. Корр.коэф 20%. Операторы связи: РелсофтКом, ВымпелКом, ВестКолл Парковка городская или в тц Ашан. Инфраструктура: фитнес-клуб с бассейном, салон красоты, столовая, кофейня. Стоимость аренды: 16 667 руб/м2/год (103 475 руб. в месяц), НДС оплачивается дополнительно. В цену включено: коммунальные расходы, эксплуатационные расходы. В цену не включено: затраты на электричество, уборка.
Чтобы получить ПОДРОБНУЮ ПРЕЗЕНТАЦИЮ С ПЛАНИРОВКОЙ И ФОТОГРАФИЯМИ на этот объект, звоните. Высылаем в течение 15 минут по запросу! |
|
| Контактная информация | |
| Лот №: | 971663 |
| Контактное лицо: | Михаил Вячеславович |
| Телефон: | 8 (495) 822-78-71 доб.216 |


