Описание объекта лот №: 971121
| Возможное использование: | Свободное назначение Гостиницы/отели Медцентры Офисы |
| Операция: | Аренда |
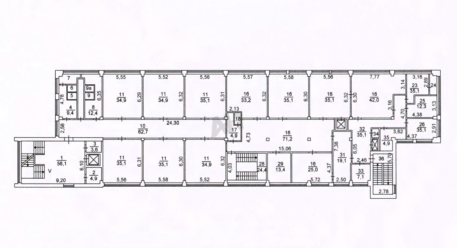
| Площадь: | 5000 кв. м |
| Этаж: | 1 - 5-й |
| Местоположение | |
| Округ: | ЮЗАО |
| Метро: | Кунцевская, Говорово, Аминьевская |
| Улица: | Рябиновая ул |
| ИФНС | № 7729 |
| Стоимость и условия | |
| Цена: | 9 000 000 руб. в месяц 21 600 руб. за 1м2 в год Сообщить о снижении цены ![]() |
| Форма налогообложения собственника: | НДС |
| Обеспечительный платеж: | 1 месяц |
| Эксплуатационные расходы включены: | ✓ |
| Характеристики | |
| Тип здания: | Административные здания |
| Отдельный вход: | ✓ |
| Этажность здания: | 5 |
| Наличие пропускной системы: | ✓ |
| Круглосуточный доступ: | ✓ |
| Наличие паркинга: | ✓ |
| Описание | |
|
Лот №971121 Предлагается к аренде здание 5000 м² на 1й линии в 14 мин от м.Мещерская (МЦД-4). Удобное транспортная доступность с Мичуринского проспекта, Проспекта Генерала Дорохова, Боровского шоссе, МКАД, СЗХ. Отдельностоящее 5-этажное здание административно-офисного назначения с входом со стороны проезжей части. Помещения требуют проведения косметического ремонта, предоставление арендных каникул обсуждается. Все инженерные коммуникации находятся в рабочем состоянии. Для размещения транспорта предусмотрена городская парковка. Возможна аренда парковочных мест на закрытой территории. Стоимость аренды: 21 600 руб/м2/год (9 000 000 руб. в месяц). В цену включено: эксплуатационные расходы.
Чтобы получить ПОДРОБНУЮ ПРЕЗЕНТАЦИЮ С ПЛАНИРОВКОЙ И ФОТОГРАФИЯМИ на этот объект, звоните. Высылаем в течение 15 минут по запросу! |
|
| Контактная информация | |
| Лот №: | 971121 |
| Контактное лицо: | Андрей Валерьевич |
| Телефон: | 8 (495) 822-78-71 доб.253 |


