Описание объекта лот №: 970364
| Возможное использование: | Офисы |
| Операция: | Аренда |
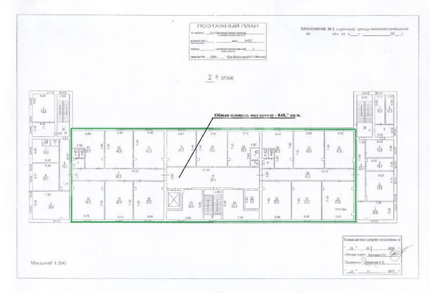
| Площадь: | 980.9 кв. м |
| Этаж: | 4 |
| Местоположение | |
| Округ: | ЮВАО |
| Метро: | Угрешская (МЦК), Кожуховская, Дубровка |
| От метро: | 20 мин. пешком |
| Улица: | 2-й Южнопортовый проезд |
| ИФНС | № 7723 |
| Стоимость и условия | |
| Цена: | 1 634 833 руб. в месяц 20 000 руб. за 1м2 в год Сообщить о снижении цены ![]() |
| Форма налогообложения собственника: | НДС |
| Обеспечительный платеж: | 1 месяц |
| Эксплуатационные расходы включены: | ✓ |
| Характеристики | |
| Этажность здания: | 4 |
| Наличие лифта: | ✓ |
| Наличие паркинга: | ✓ |
| Наличие общепита в здании: | ✓ |
| Описание | |
|
Лот №970364 Предлагается к рассмотрению просторный офисный блок общей площадью 980,9 м², расположенный на четвертом этаже здания. Транспортная доступность обеспечивается благодаря близости к станции метро «Угрешская», время в пути до которой составляет примерно 20 минут. Для вашего комфорта в здании функционирует пассажирский лифт. Безопасность пребывания гарантируется за счет круглосуточной системы контроля и управления доступом. Помещение оснащено современной сплит-системой кондиционирования, позволяющей поддерживать оптимальный температурный режим. Вентиляция в офисе организована естественным способом. В соответствии с требованиями пожарной безопасности установлена система оповещения и сигнализации. Стоимость аренды: 20 000 руб/м2/год (1 634 834 руб. в месяц). В цену включено: эксплуатационные расходы. В цену не включено: затраты на электричество.
Чтобы получить ПОДРОБНУЮ ПРЕЗЕНТАЦИЮ С ПЛАНИРОВКОЙ И ФОТОГРАФИЯМИ на этот объект, звоните. Высылаем в течение 15 минут по запросу! |
|
| Контактная информация | |
| Лот №: | 970364 |
| Контактное лицо: | Виктория |
| Телефон: | 8 (495) 822-78-71 доб.265 |


