Описание объекта лот №: 967463
| Возможное использование: | Свободное назначение Офисы |
| Операция: | Продажа |
| Площадь: | 1300 кв. м |
| Этаж: | 1 - 3-й |
| Местоположение | |
| Округ: | ЦАО |
| Метро: | Чкаловская, Таганская, Красные ворота |
| Улица: | Земляной Вал ул |
| ИФНС | № 7709 |
| Стоимость и условия | |
| Цена: |
620 000 000 руб. Сообщить о снижении цены
|
| Форма налогообложения собственника: | НДС |
| Срок окупаемости: | 10 лет |
| Эксплуатационные расходы включены: | ✓ |
| Характеристики | |
| Тип здания: | Особняки |
| Отдельный вход: | ✓ |
| Этажность здания: | 3 |
| Наличие мебели: | ✓ |
| Наличие кондиционирования: | ✓ |
| Круглосуточный доступ: | ✓ |
| Кол-во парковочных мест: | 10 |
| Тип окон: | обычные |
| Описание | |
|
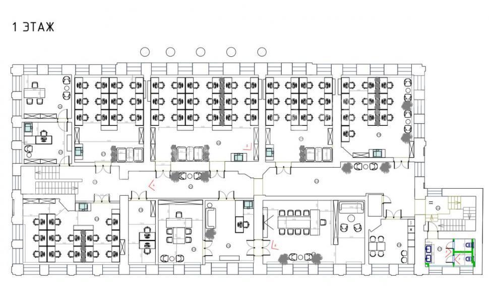
Лот №967463 Продается уникальный объект - исторический особняк по адресу ул. Земляной Вал, 39/1, стр. 2 общей площадью 1300м2, состоящий из 3 этажей. Эксклюзивное предложение кто ценит: – приватную территорию в центре города, – рациональную кабинетную планировку с VIP-зоной и конференц-залом, – атмосферу респектабельности, высокие потолки и исторические архитектурные элементы. Преимущества объекта: - Пространство: 1300м2 офисных площадей на 3-х этажах с кабинетной планировкой, ВИП-зоной с конференц залом, - Готовность: Офис с отделкой, полностью готово к въезду, - Парковка: Наземная парковка на 10 машиномест, - Интерьер: Высокие потолки, качественные материалы, исторические элементы декора, - Транспортная доступность: 2 мин. до м. Чкаловская, 4 мин. до м. Курская, удобный выезд на садовое кольцо, множество маршрутов автобусов и троллейбусов рядом с офисом. Близость к Садовому кольцу и ТТК обеспечивает быстрое передвижение. Респектабельный особняк: Рациональная кабинетная планировка с VIP-зоной с конференц-залом идеально подойдет для размещения одной компании. Высокие потолки, исторические элементы отделки и качественные материалы создают ощущение респектабельности и статуса. Ключевая информация об объекте: - Общая площадь 1300м2 - 3 этажа - 30 кабинетов разного формата - собственная территория и охраняемая парковка на 10 мест - Земельный участок 1 000м2 (аренда) - Предполагаемая аренда: 52 000 руб. за м2 в год (УСН), 5 633 334 руб. в мес. (УСН) - Продажа по ДКПН Звоните, оперативно все покажем и расскажем!
Чтобы получить ПОДРОБНУЮ ПРЕЗЕНТАЦИЮ С ПЛАНИРОВКОЙ И ФОТОГРАФИЯМИ на этот объект, звоните. Высылаем в течение 15 минут по запросу! |
|
| Доп. услуги: | - возможна продажа в кредит |
| Контактная информация | |
| Лот №: | 967463 |
| Контактное лицо: | Лидия Владимировна |
| Телефон: | 8 (495) 822-78-71 доб.240 |


