Описание объекта лот №: 965970
| Возможное использование: | Офисы |
| Операция: | Аренда |
| Тип аренды: | Прямая аренда |
| Площадь: | 111.5 кв. м |
| Этаж: | 2 |
| Местоположение | |
| Округ: | ЦАО |
| Метро: | Менделеевская, Достоевская, Цветной бульвар |
| От метро: | 9 мин. пешком |
| Улица: | Краснопролетарская ул |
| ИФНС | № 7707 |
| Стоимость и условия | |
| Цена: | 271 010 руб. в месяц + НДС 29 167 руб. за 1м2 в год + НДС Сообщить о снижении цены ![]() |
| Форма налогообложения собственника: | НДС |
| Обеспечительный платеж: | 1 месяц |
| Эксплуатационные расходы включены: | ✓ |
| Характеристики | |
| Тип здания: | Бизнес центры класса B |
| Этажность здания: | 7 |
| Наличие кондиционирования: | ✓ |
| Наличие лифта: | ✓ |
| Наличие пропускной системы: | ✓ |
| Круглосуточный доступ: | ✓ |
| Наличие паркинга: | ✓ |
| Наличие общепита в здании: | ✓ |
| Электрическая мощность, кВт: | 20 |
| Описание | |
|
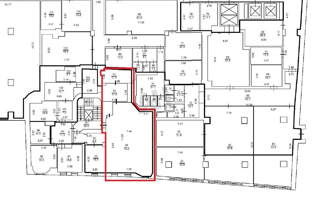
Лот №965970 Предлагается в прямую аренду офисное помещение, расположенное на 2 этаже БЦ класса B. Общая площадь 111.54 м2. Деловой квартал «Красный Пролетарий» - офисный центр класса «В», расположенный по адресу: г. Москва, ул. Краснопролетарская д.16 в 9 мин от м Менделеевская и состоит из трех корпусов, связанных переходами, в которых и расположена торговая галерея. Вход через пропускную систему. Система контроля доступа: круглосуточная. Система кондиционирования: сплит-система. Система вентиляции: приточно-вытяжная. Система пожаротушения: оповещение (сигнализация). Юридический адрес предоставляется на весь срок аренды. Отличное сочетание цены и качества. Стоимость аренды: 29 167 руб/м2/год (271 011 руб. в месяц), НДС оплачивается дополнительно. В цену включено: эксплуатационные расходы. В цену не включено: затраты на электричество.
Чтобы получить ПОДРОБНУЮ ПРЕЗЕНТАЦИЮ С ПЛАНИРОВКОЙ И ФОТОГРАФИЯМИ на этот объект, звоните. Высылаем в течение 15 минут по запросу! |
|
| Контактная информация | |
| Лот №: | 965970 |
| Контактное лицо: | Светлана Анатольевна |
| Телефон: | 8 (495) 822-78-71 доб.236 |


