Описание объекта лот №: 963591
| Возможное использование: | Офисы Рабочие места |
| Операция: | Аренда |
| Тип аренды: | Прямая аренда |
| Площадь: | 922.9 кв. м |
| Этаж: | 5 |
| Местоположение | |
| Округ: | ЦАО |
| Метро: | Менделеевская, Белорусская, Достоевская |
| От метро: | 1 мин. пешком |
| Улица: | Новослободская ул |
| ИФНС | № 7707 |
| Стоимость и условия | |
| Цена: | 9 216 100 руб. в месяц 119 832 руб. за 1м2 в год Сообщить о снижении цены ![]() |
| Форма налогообложения собственника: | НДС |
| Обеспечительный платеж: | 1 месяц |
| Клининг входит в договор аренды: | ✓ |
| Коммунальные услуги включены: | ✓ |
| Эксплуатационные расходы включены: | ✓ |
| Электроэнергия включена: | ✓ |
| Характеристики | |
| Тип здания: | Бизнес центры класса А |
| Отдельный вход: | ✓ |
| Этажность здания: | 8 |
| Наличие мебели: | ✓ |
| Наличие кондиционирования: | ✓ |
| Наличие лифта: | ✓ |
| Наличие пропускной системы: | ✓ |
| Круглосуточный доступ: | ✓ |
| Наличие общепита в здании: | ✓ |
| Тип окон: | обычные |
| Описание | |
|
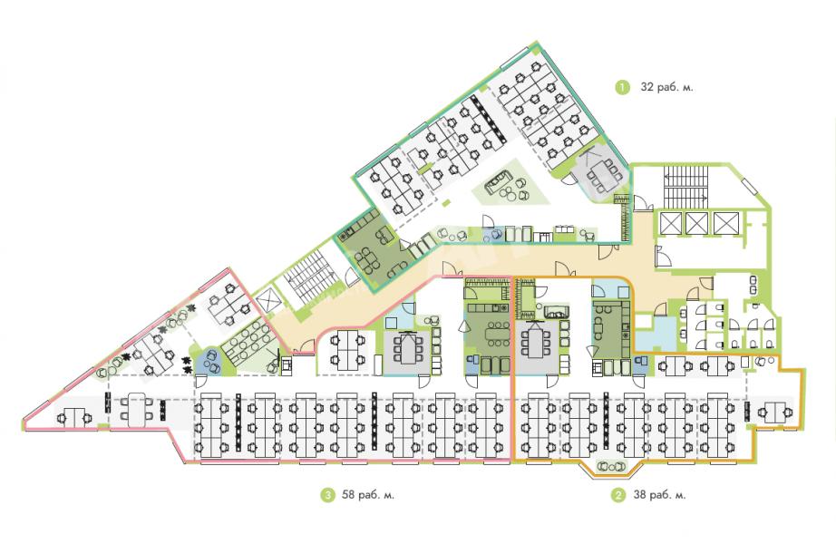
Лот №963591 Предлагается в аренду комфортабельный офисный блок (5-й этаж целиком) площадью 922.89 кв.м. на (128 рабочих мест) в бизнес-центре "ASPACE Новослободская" Пространство отличается уютной атмосферой и функциональной планировкой, соответствующей стандартам класса А+. Помещения с ремонтом и отделкой готовы к въезду за один день. Вы получаете универсальное пространство по авторскому стандарту гибких офисов. Отличие офисов — возможность не только моделировать пространство, но и сохранять вашу приватность в отношении других резидентов. Все офисы обеспечены изолированной IT-сетью, высокоскоростным интернетом и Wi-Fi. Возможна организация отдельной серверной. В арендную ставку включены все необходимые платежи: вода, кофепоинт, угощения, оргтехника, IT-инфраструктура, услуги ресепшена, охраны и клининга, мелкий ремонт, эксплуатационные и коммунальные расходы. С помощью системы гибких перегородок и модульной мягкой мебели вы сами создаете удобную планировку — будь то open space, кабинеты или лаундж-зоны. Это позволяет арендатору адаптировать офис под свою сферу деятельности, бизнес-задачи и корпоративную культуру. Помещение обеспечивает круглосуточный доступ и оборудовано витринными окнами. Высота потолков составляет 3,45 метра, что создает ощущение простора и способствует эффективной организации рабочей зоны. Локация характеризуется интенсивным пешеходным и автомобильным трафиком, а также статусом прогулочного центра. Офис находится в окружении респектабельных бизнес-центров, торговых комплексов, гостиниц, жилых резиденций и культурных учреждений. Стоимость аренды: 119 832 руб/м2/год (9 216 101 руб. в месяц). В цену включено: затраты на электричество, коммунальные расходы, уборка, эксплуатационные расходы.
Чтобы получить ПОДРОБНУЮ ПРЕЗЕНТАЦИЮ С ПЛАНИРОВКОЙ И ФОТОГРАФИЯМИ на этот объект, звоните. Высылаем в течение 15 минут по запросу! |
|
| Контактная информация | |
| Лот №: | 963591 |
| Контактное лицо: | Ринат |
| Телефон: | 8 (495) 822-78-71 доб.232 |


