Описание объекта лот №: 961721
| Возможное использование: | Склады Производство Склады ответственного хранения Теплые склады |
| Операция: | Аренда |
| Площадь: | 613.1 кв. м |
| Этаж: | 1 |
| Местоположение | |
| Округ: | САО |
| Метро: | Улица 1905 года, Краснопресненская, Беговая |
| От метро: | 8 мин. пешком |
| Улица: | Пресненский Вал ул |
| ИФНС | № 7703 |
| Стоимость и условия | |
| Цена: | 1 532 750 руб. в месяц 30 000 руб. за 1м2 в год Сообщить о снижении цены ![]() |
| Форма налогообложения собственника: | НДС |
| Обеспечительный платеж: | 1 месяц |
| Характеристики | |
| Тип здания: | Жилые дома |
| Этажность здания: | 14 |
| Наличие паркинга: | ✓ |
| Электрическая мощность, кВт: | 40 |
| Описание | |
|
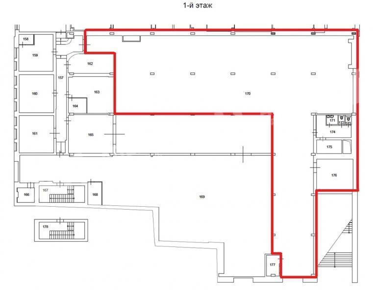
Лот №961721 Аренда помещения свободного назначения, расположенного по адресу: ул. Пресненский Вал, 14. площадью 613,1 м² Помещение расположено на первом этаже с отдельным входом с улицы в шаговой доступности от станции метро 1905 года. Район с высокой концентрацией офисных и жилых зданий, объектов розничной торговли, образовательных учреждений и транспортной инфраструктуры. Высокий пешеходный и автомобильный трафик обеспечивает стабильный поток потенциальных клиентов. Рассматриваются аргументированные предложения по стоимости. Коммунальные услуги, включая электроснабжение, водопотребление, водоотведение и отопление, оплачиваются арендатором отдельно. Предусмотрен период арендных каникул для проведения ремонтных работ. Объект оборудован мокрой точкой с возможностью обустройства санузла. Инфраструктура включает круглосуточную систему безопасности, систему автоматического пожаротушения, датчики задымления и приточно-вытяжную вентиляцию. Высота потолков составляет 3 метра. Локация характеризуется как старый густонаселенный район с активным строительством новых жилых комплексов. Стоимость аренды: 30 000 руб/м2/год (1 532 750 руб. в месяц). В цену не включено: эксплуатационные расходы.
Чтобы получить ПОДРОБНУЮ ПРЕЗЕНТАЦИЮ С ПЛАНИРОВКОЙ И ФОТОГРАФИЯМИ на этот объект, звоните. Высылаем в течение 15 минут по запросу! |
|
| Контактная информация | |
| Лот №: | 961721 |
| Контактное лицо: | Елена |
| Телефон: | 8 (495) 822-78-71 доб.257 |


