Описание объекта лот №: 960486
| Возможное использование: | Свободное назначение Аптеки Банки Бытовые услуги Ломбарды Кафе/рестораны Магазины Медцентры Нотариусы/турфирмы Офисы Салоны красоты Фитнес Фотостудии Шоурумы |
| Операция: | Аренда |
| Тип аренды: | Прямая аренда |
| Площадь: | 350 кв. м |
| Этаж: | 1 |
| Местоположение | |
| Город: | Люберцы, Котельники |
| Метро: | Лухмановская, Улица Дмитриевского, Лермонтовский проспект |
| Улица: | Новорязанское шоссе |
| ИФНС | № 5027 |
| Стоимость и условия | |
| Цена: | 541 654 руб. в месяц + НДС 18 571 руб. за 1м2 в год + НДС Сообщить о снижении цены ![]() |
| Форма налогообложения собственника: | НДС |
| Обеспечительный платеж: | 1 месяц |
| Эксплуатационные расходы включены: | ✓ |
| Характеристики | |
| Тип здания: | Административные здания |
| Отдельный вход: | ✓ |
| Этажность здания: | 3 |
| Наличие пандуса: | ✓ |
| Наличие ж/д ветки: | ✓ |
| Круглосуточный доступ: | ✓ |
| Наличие паркинга: | ✓ |
| Кол-во парковочных мест: | 100 |
| Тип окон: | обычные |
| Электрическая мощность, кВт: | 100 |
| Описание | |
|
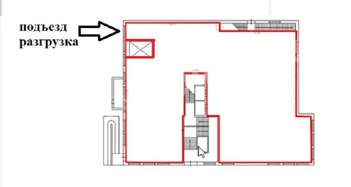
Лот №960486 Аренда перспективного помещения 350 м2 на 1м этаже в здании в г.Люберцы, м.Лухмановская (17 мин пешком). Рядом Макдоналдс, Дикси, ЖК Люберцы парк, Наташинские пруды, парковка. 3 отдельных входа. Потолок 4.2м. Все центральные коммуникации. Есть газ, котел. Состояние помещения с ремонтом внутри. Подъезд разгрузка для грузового транспорта. Своя территория. от 100 кВт. Возможный профиль: Продукты, Алкомаркет, Аптека, Оптика, Услуги, Сервис, Ремонт, Салон красоты, Парикмахерская, Барбер шоп, Банк, Ломбард, Касса, Ателье, Химчистка, Фото, Туры, Страхование, Нотариус, Детский Сад, Центр, Детский Клуб, Обучение, Школа, Курсы, Творчество, Тренинги, МедЦентр, Клиника, Анализы, Стоматология, Косметология, Салон эпиляции, Массаж, Спа, ТНП, Цветы, Одежда, Обувь, Секонд хенд, Хозтовары, Для Дома, Для Ремонта, Детские, Зоотовары, Стройматериалы, Интернет магазин, Пункт самовывоза, Выдачи, Доставка, ДаркКитчен, Товары, Шоурум, Бутик, Ювелирный, Интерьер, Посуда, Игрушки, Канцтовары, Подарки, Сувениры, Косметика, Бижутерия, Аксессуары, Парфюмерия, БытХимия, Текстиль, Ткани, Белье, Хостел, Гостиница, Отель, Фитнес, Танцы, Единоборства, Спортзал, Кибер зона, Букмекеры, Ставки, Техника, Электроника, Мебель, ВетКлиника, Салон Связи, Бар, Кальянная, Клуб, Караоке, Бильярдная, Боулинг, Антикафе, Квест Стоимость аренды: 18 571 руб/м2/год (541 655 руб. в месяц), НДС оплачивается дополнительно. В цену включено: эксплуатационные расходы. В цену не включено: затраты на электричество, коммунальные расходы, уборка.
Чтобы получить ПОДРОБНУЮ ПРЕЗЕНТАЦИЮ С ПЛАНИРОВКОЙ И ФОТОГРАФИЯМИ на этот объект, звоните. Высылаем в течение 15 минут по запросу! |
|
| Контактная информация | |
| Лот №: | 960486 |
| Контактное лицо: | Алексей Владимирович |
| Телефон: | 8 (495) 822-78-71 доб.217 |


