Описание объекта лот №: 957679
| Возможное использование: | Офисы |
| Операция: | Аренда |
| Площадь: | 562 кв. м |
| Этаж: | 2 |
| Местоположение | |
| Округ: | СВАО |
| Метро: | Марьина Роща, Алексеевская, Бутырская |
| От метро: | 11 мин. пешком |
| Улица: | 12-й Марьиной Рощи проезд |
| ИФНС | № 7717 |
| Стоимость и условия | |
| Цена: | 1 019 983 руб. в месяц 21 779 руб. за 1м2 в год Сообщить о снижении цены ![]() |
| Форма налогообложения собственника: | НДС |
| Обеспечительный платеж: | 2 месяца |
| Эксплуатационные расходы включены: | ✓ |
| Характеристики | |
| Тип здания: | Бизнес центры класса B |
| Этажность здания: | 6 |
| Наличие кондиционирования: | ✓ |
| Наличие лифта: | ✓ |
| Наличие пропускной системы: | ✓ |
| Наличие паркинга: | ✓ |
| Наличие общепита в здании: | ✓ |
| Тип окон: | обычные |
| Описание | |
|
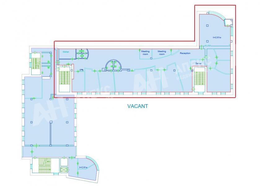
Лот №957679 Предлагается в аренду офисное помещение смешанной планировки площадью 562 кв.м, в офисном здании класса Б. Планировка офиса: зона ресепшн, зона опен-спей, 5 кабинетов, кухня, отдельный с/у. Офис после косметического ремонта и готов к въезду. Прямая аренда с предоставлением юр-адреса. 10 минут пешком до ст. метро Марьина Роща. Стоимость аренды: 21 779 руб/м2/год (1 019 984 руб. в месяц). В цену включено: эксплуатационные расходы. В цену не включено: затраты на электричество, коммунальные расходы.
Чтобы получить ПОДРОБНУЮ ПРЕЗЕНТАЦИЮ С ПЛАНИРОВКОЙ И ФОТОГРАФИЯМИ на этот объект, звоните. Высылаем в течение 15 минут по запросу! |
|
| Контактная информация | |
| Лот №: | 957679 |
| Контактное лицо: | Роман Михайлович |
| Телефон: | 8 (495) 822-78-71 доб.251 |


