Описание объекта лот №: 947466
| Возможное использование: | Офисы |
| Операция: | Аренда |
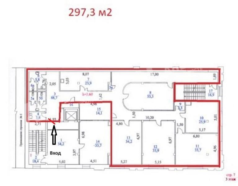
| Площадь: | 297 кв. м |
| Этаж: | 3 |
| Местоположение | |
| Округ: | ВАО |
| Метро: | Электрозаводская, Бауманская, Сокольники |
| От метро: | 5 мин. транспортом |
| Улица: | Переведеновский пер |
| ИФНС | № 7701 |
| Стоимость и условия | |
| Цена: | 569 250 руб. в месяц 23 000 руб. за 1м2 в год Сообщить о снижении цены ![]() |
| Обеспечительный платеж: | 1 месяц |
| Эксплуатационные расходы включены: | ✓ |
| Характеристики | |
| Тип здания: | Бизнес центры класса B |
| Этажность здания: | 4 |
| Наличие кондиционирования: | ✓ |
| Наличие лифта: | ✓ |
| Наличие пропускной системы: | ✓ |
| Наличие паркинга: | ✓ |
| Наличие общепита в здании: | ✓ |
| Описание | |
|
Лот №947466 В аренду предлагается автономный офисный блок 297м2 в Басманном районе ЦАО. Помещение равноудалено от метро Бауманская и Электрозаводская. Для автомобилистов транспортную доступность обеспечивают близость ТТК и Рубцовской набережной. Помещение расположено в деловом квартале на Переведеновском переулке, в окружении бизнес центров, со всей сопутствующей деловому кварталу инфраструктурой. Офис имеет функциональную смешанную планировку включающую в себя: зону ресепшен, оборудованную серверную, подсобное помещение, два с\у и пять кабинетов различной площади, мини-кухню. Офис в отличном состоянии и готов к заезду в кратчайшие сроки. На территории делового квартала парковка бесплатная, места в наличии. Просмотр в удобное время по предварительной договоренности. Стоимость аренды: 23 000 руб/м2/год (569 250 руб. в месяц). В цену включено: эксплуатационные расходы. В цену не включено: коммунальные расходы.
Чтобы получить ПОДРОБНУЮ ПРЕЗЕНТАЦИЮ С ПЛАНИРОВКОЙ И ФОТОГРАФИЯМИ на этот объект, звоните. Высылаем в течение 15 минут по запросу! |
|
| Контактная информация | |
| Лот №: | 947466 |
| Контактное лицо: | Филипп |
| Телефон: | 8 (495) 822-78-71 доб.261 |


