Описание объекта лот №: 944052
| Возможное использование: | Офисы |
| Операция: | Аренда |
| Тип аренды: | Прямая аренда |
| Площадь: | 499.1 кв. м |
| Этаж: | 1 - 2-й |
| Местоположение | |
| Округ: | ЮАО |
| Метро: | Полянка, Октябрьская, Добрынинская |
| От метро: | 6 мин. пешком |
| Улица: | 1-й Спасоналивковский пер |
| ИФНС | № 7706 |
| Стоимость и условия | |
| Цена: | 1 746 850 руб. в месяц 42 000 руб. за 1м2 в год Сообщить о снижении цены ![]() |
| Форма налогообложения собственника: | НДС |
| Обеспечительный платеж: | 2 месяца |
| Эксплуатационные расходы включены: | ✓ |
| Характеристики | |
| Тип здания: | Особняки |
| Отдельный вход: | ✓ |
| Этажность здания: | 2 |
| Наличие паркинга: | ✓ |
| Тип окон: | обычные |
| Описание | |
|
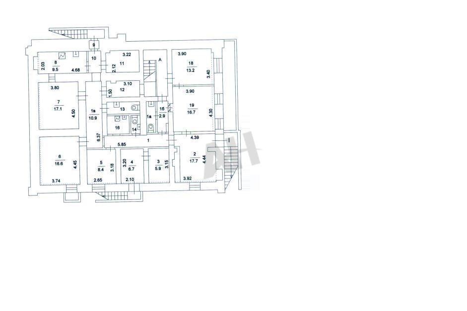
Лот №944052 Сдается двухэтажный особняк, на первой линии домов. Общая площадь 499.1 кв.м. Отдельный вход. Преобладает кабинетная планировка. Сан узлы на каждом этаже. Выделенная комната для приема пищи. Все коммуникации центральные. Комфортную работу обеспечит система кондиционирования и вентиляции. Охранная и пожарная сигнализация. Для арендатора предусмотрена наземная парковка во дворе. Метро Полянка/октябрьская в шаговой доступности. Освобождается с 01 ноября. Посмотреть можно заранее, по предварительной договоренности. Стоимость аренды: 42 000 руб/м2/год (1 746 850 руб. в месяц). В цену включено: эксплуатационные расходы. В цену не включено: затраты на электричество, коммунальные расходы, уборка.
Чтобы получить ПОДРОБНУЮ ПРЕЗЕНТАЦИЮ С ПЛАНИРОВКОЙ И ФОТОГРАФИЯМИ на этот объект, звоните. Высылаем в течение 15 минут по запросу! |
|
| Контактная информация | |
| Лот №: | 944052 |
| Контактное лицо: | Дмитрий Викторович |
| Телефон: | 8 (495) 822-78-71 доб.220 |


