Описание объекта лот №: 943784
| Возможное использование: | Свободное назначение Кафе/рестораны |
| Операция: | Аренда |
| Тип аренды: | Прямая аренда |
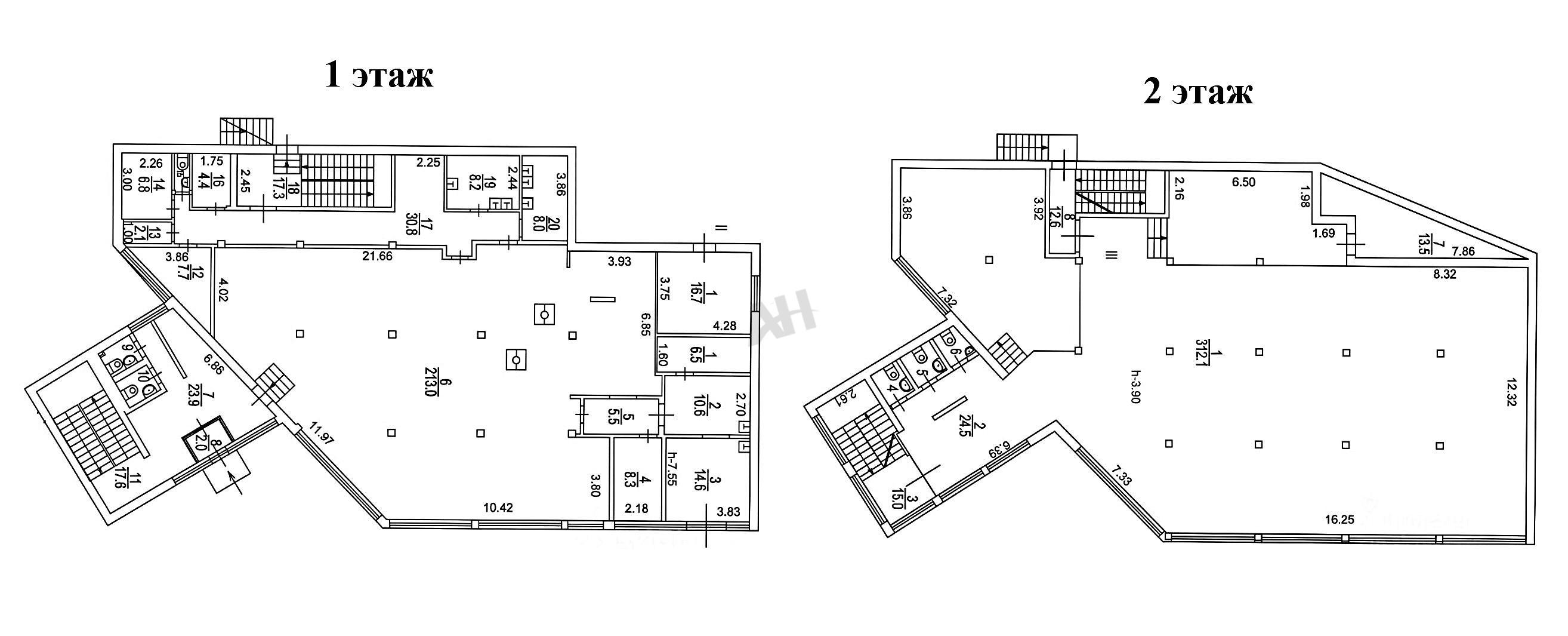
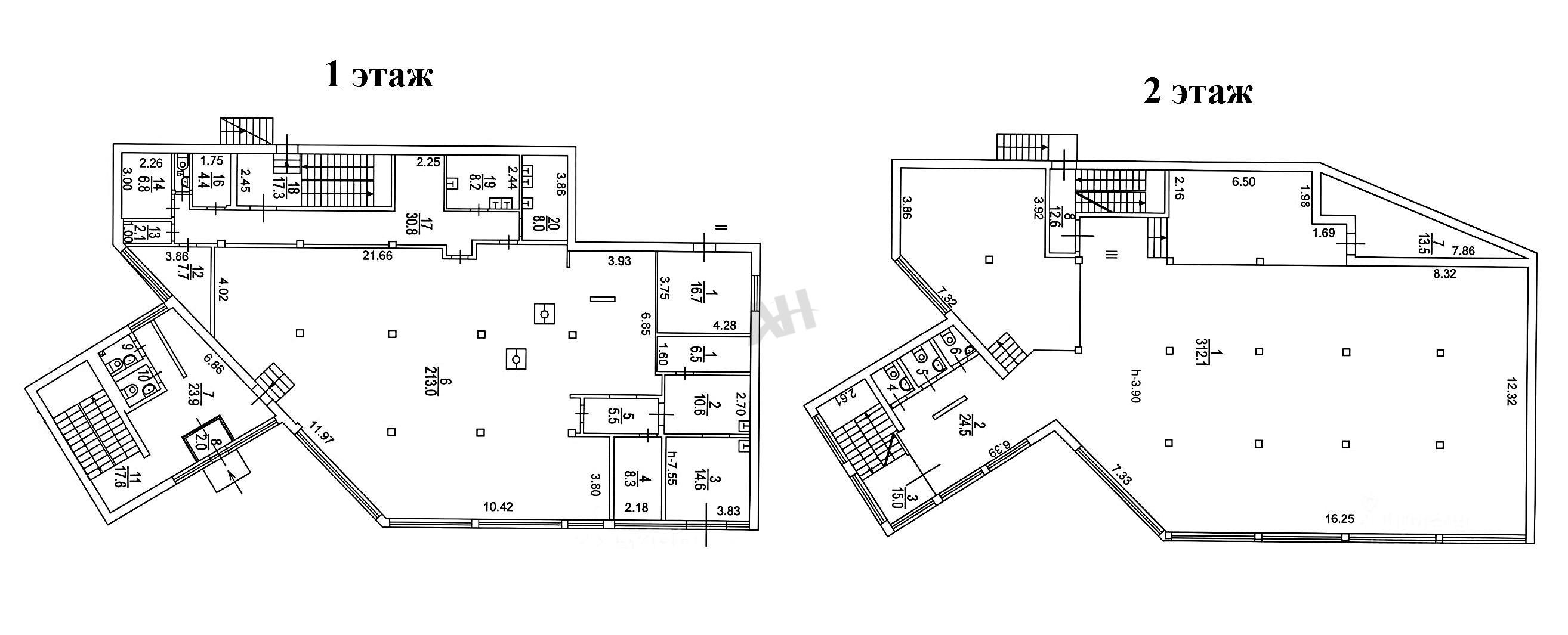
| Площадь: | 794 кв. м |
| Этаж: | 1 - 2-й |
| Местоположение | |
| Округ: | САО |
| Метро: | Марьина Роща, Савеловская, Менделеевская |
| От метро: | 10 мин. пешком |
| Улица: | Сущёвский Вал ул |
| ИФНС | № 7715 |
| Стоимость и условия | |
| Цена: | 2 399 997 руб. в месяц 36 272 руб. за 1м2 в год Сообщить о снижении цены ![]() |
| Форма налогообложения собственника: | НДС |
| Обеспечительный платеж: | 1 месяц |
| Эксплуатационные расходы включены: | ✓ |
| Характеристики | |
| Тип здания: | Административные здания |
| Отдельный вход: | ✓ |
| Этажность здания: | 2 |
| Круглосуточный доступ: | ✓ |
| Тип окон: | витринные |
| Электрическая мощность, кВт: | 150 |
| Описание | |
|
Лот №943784 Предлагаем в аренду отдельно стоящее здание 794 кв.м. под ресторан/ночной клуб с отд. входом с 1 линии и панорамным остеклением. Расположено на ТТК по соседству с 23-х этажным Бизнес-центром класса А. Двухэтажное: 1 этаж: 409,3 кв.м. (высота потолков 3,2м), 2 этаж: 384,3 кв.м. (высота потолков 3-3,9м). Преимущественно открытая планировка. На 2 этаже в зале — полностью открывающиеся окна. В состоянии за выездом Чайханы. 150 кВт. Центральные коммуникации. Вокруг: различные кафе, густонаселенный жилой массив, БЦ, ВУЗы, административные здания, магазины и др. Прямая аренда, долгосрочный договор от 3-х лет. Парковка: городская (площадка перед зданием) - 60/150 руб в час. Стоимость аренды: 36 272 руб/м2/год (2 399 998 руб. в месяц). В цену включено: эксплуатационные расходы. В цену не включено: затраты на электричество, коммунальные расходы, уборка.
Чтобы получить ПОДРОБНУЮ ПРЕЗЕНТАЦИЮ С ПЛАНИРОВКОЙ И ФОТОГРАФИЯМИ на этот объект, звоните. Высылаем в течение 15 минут по запросу! |
|
| Контактная информация | |
| Лот №: | 943784 |
| Контактное лицо: | Александр Александрович |
| Телефон: | 8 (495) 822-78-71 доб.245 |


