Описание объекта лот №: 943619
| Возможное использование: | Свободное назначение Бизнес |
| Операция: | Продажа бизнеса |
| Площадь: | 231.8 кв. м |
| Этаж: | цоколь |
| Местоположение | |
| Округ: | ЦАО |
| Метро: | Бауманская, Курская, Красные ворота |
| От метро: | 10 мин. пешком |
| Улица: | Денисовский пер |
| ИФНС | № 7701 |
| Стоимость и условия | |
| Цена: |
30 000 000 руб. Сообщить о снижении цены
|
| Срок окупаемости: | 8 лет |
| Обеспечительный платеж: | Без залога |
| Характеристики | |
| Тип здания: | Жилые дома |
| Отдельный вход: | ✓ |
| Этажность здания: | 5 |
| Электрическая мощность, кВт: | 15 |
| Описание | |
|
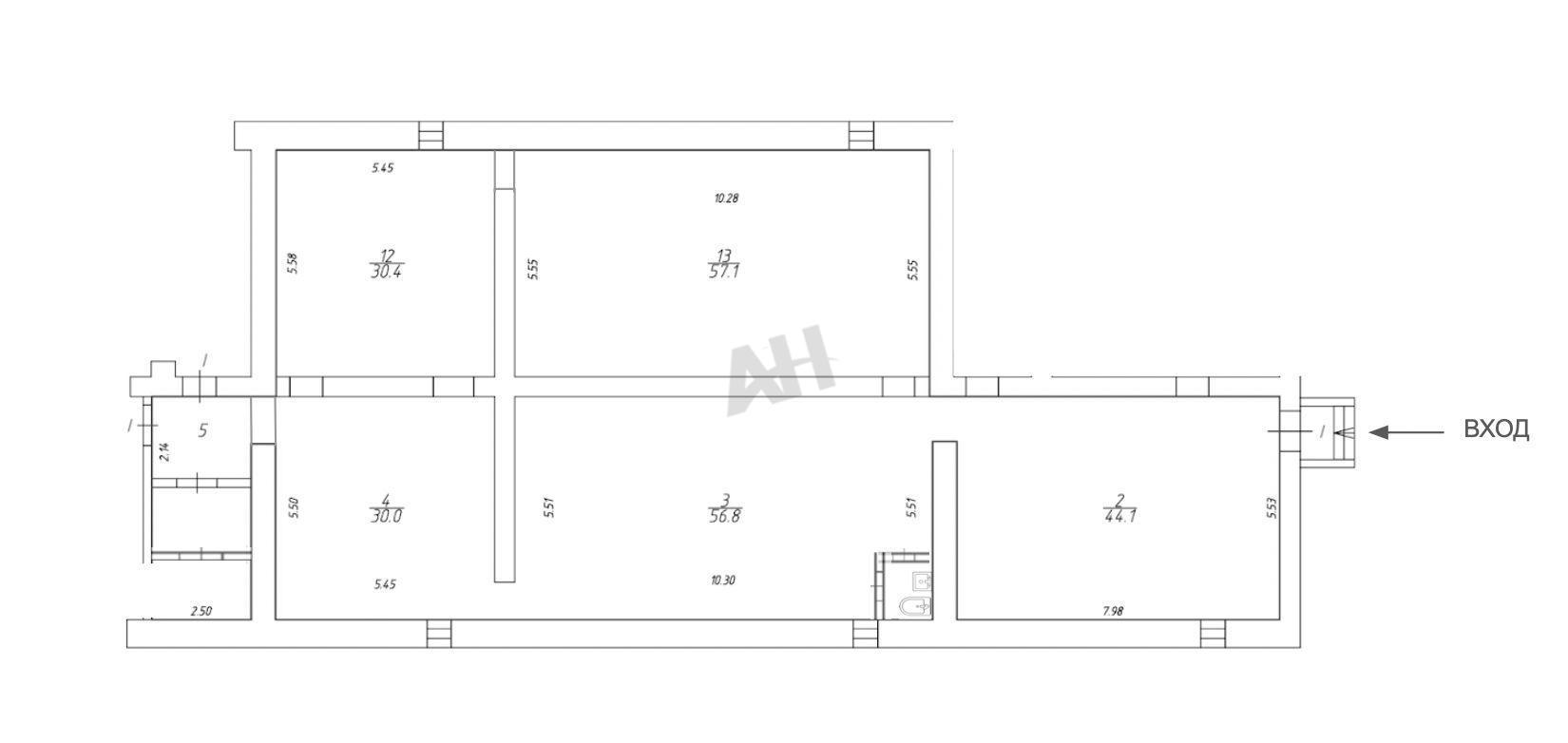
Лот №943619 Предлагается помещение свободного назначения, расположенное по адресу: Денисовский переулок, дом 9. Объект отличается отличной транспортной доступностью. Пешая прогулка до станции метро «Бауманская» занимает всего 10 минут. Остановка общественного транспорта находится в 3 минутах ходьбы. Помещение общей площадью 231,8 кв.м. характеризуется высотой потолков 2,6 м и выделенной электрической мощностью 15 кВт. Объект расположен на цокольном этаже и имеет отдельный вход. В шаговой доступности от помещения расположена развитая инфраструктура, включающая три школы и два детских сада. В радиусе 10-минутной ходьбы проживает более 15 900 человек.
Чтобы получить ПОДРОБНУЮ ПРЕЗЕНТАЦИЮ С ПЛАНИРОВКОЙ И ФОТОГРАФИЯМИ на этот объект, звоните. Высылаем в течение 15 минут по запросу! |
|
| Доп. услуги: | - возможна продажа в кредит |
| Контактная информация | |
| Лот №: | 943619 |
| Контактное лицо: | Апекс |
| Телефон: | 8 (495) 822-78-71 доб.333 |


