Описание объекта лот №: 940968
| Возможное использование: | Свободное назначение Бытовые услуги Ломбарды Кафе/рестораны Магазины Салоны красоты Шоурумы |
| Операция: | Аренда |
| Тип аренды: | Прямая аренда |
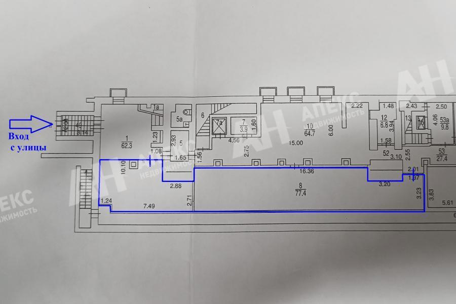
| Площадь: | 100 кв. м |
| Этаж: | цоколь |
| Местоположение | |
| Округ: | ВАО |
| Метро: | Преображенская площадь, Семеновская, Электрозаводская |
| От метро: | 1 мин. пешком |
| Улица: | Большая Черкизовская ул |
| ИФНС | № 7718 |
| Стоимость и условия | |
| Цена: | 200 000 руб. в месяц 24 000 руб. за 1м2 в год Сообщить о снижении цены ![]() |
| Форма налогообложения собственника: | НДС |
| Обеспечительный платеж: | 1 месяц |
| Характеристики | |
| Тип здания: | Жилые дома |
| Этажность здания: | 9 |
| Наличие кондиционирования: | ✓ |
| Наличие паркинга: | ✓ |
| Описание | |
|
Лот №940968 Предлагается в аренду помещение свободного назначения площадью 100 м2, расположенное всего в 1 минуте пешком от станции метро «Преображенская площадь». Объект находится в плотном жилом массиве с населением более 13 000 человек в радиусе 500 метров, что обеспечивает высокий пешеходный трафик. Помещение расположено в первом доме от метро, на первой линии, с возможностью размещения вывески на фасаде со стороны метро. Открытая планировка и два входа создают удобные условия для организации бизнеса. Пространство подходит для различных видов деятельности: магазина, шоурума, кафе, салона красоты, оказания услуг населению, пункта выдачи заказов и других форматов. Стоимость аренды: 24 000 руб/м2/год (200 000 руб. в месяц). В цену не включено: затраты на электричество, коммунальные расходы, эксплуатационные расходы.
Чтобы получить ПОДРОБНУЮ ПРЕЗЕНТАЦИЮ С ПЛАНИРОВКОЙ И ФОТОГРАФИЯМИ на этот объект, звоните. Высылаем в течение 15 минут по запросу! |
|
| Контактная информация | |
| Лот №: | 940968 |
| Контактное лицо: | Сергей Федорович |
| Телефон: | 8 (495) 822-78-71 доб.218 |


