Описание объекта лот №: 940719
| Возможное использование: | Офисы |
| Операция: | Аренда |
| Тип аренды: | Прямая аренда |
| Площадь: | 170 кв. м |
| Этаж: | 2 |
| Местоположение | |
| Округ: | ЦАО |
| Метро: | Белорусская, Улица 1905 года, Баррикадная |
| От метро: | 8 мин. пешком |
| Улица: | Тишинский Ср. пер |
| ИФНС | № 7710 |
| Стоимость и условия | |
| Цена: | 637 500 руб. в месяц 45 000 руб. за 1м2 в год Сообщить о снижении цены ![]() |
| Форма налогообложения собственника: | НДС |
| Обеспечительный платеж: | 2 месяца |
| Характеристики | |
| Тип здания: | Бизнес центры класса B |
| Этажность здания: | 7 |
| Наличие лифта: | ✓ |
| Наличие паркинга: | ✓ |
| Описание | |
|
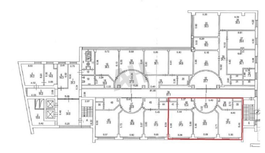
Лот №940719 Предлагается в аренду офисное помещение общей площадью 170 м² на 2 этаже бизнес-центра класса В+ «Чайка Плаза II». Здание расположено в Пресненском районе ЦАО Москвы, в восьми минутах пешком от станции метро «Белорусская». Расположение обеспечивает отличную транспортную доступность к основным магистралям, включая ТТК, Садовое кольцо, Ленинградское шоссе и Ленинградский проспект. Помещение имеет стандартную отделку и рассчитано на организацию 17рабочих мест. Офисный блок оснащен централизованной системой кондиционирования и приточно-вытяжной вентиляцией, что гарантирует поддержание комфортного температурного режима и высокого качества воздуха. В здании функционирует центральная система вентиляции и система пожаротушения с оповещением. Для арендаторов обеспечен круглосуточный доступ через отдельный вход с системой контроля, а также доступны услуги нескольких независимых телекоммуникационных провайдеров. Электрическая мощность составляет 60 Вт на м². Стоимость аренды: 45 000 руб/м2/год (637 500 руб. в месяц). В цену не включено: затраты на электричество, эксплуатационные расходы.
Чтобы получить ПОДРОБНУЮ ПРЕЗЕНТАЦИЮ С ПЛАНИРОВКОЙ И ФОТОГРАФИЯМИ на этот объект, звоните. Высылаем в течение 15 минут по запросу! |
|
| Контактная информация | |
| Лот №: | 940719 |
| Контактное лицо: | Виктория |
| Телефон: | 8 (495) 822-78-71 доб.202 |


