Описание объекта лот №: 937976
| Возможное использование: | Свободное назначение Банки Магазины Нотариусы/турфирмы Офисы Фотостудии Шоурумы |
| Операция: | Аренда |
| Тип аренды: | Прямая аренда |
| Площадь: | 250 кв. м |
| Этаж: | 1 |
| Местоположение | |
| Округ: | ЮВАО |
| Метро: | Марьино, Братиславская, Перерва (МЦД) |
| От метро: | 1 мин. пешком |
| Улица: | Люблинская ул |
| ИФНС | № 7723 |
| Стоимость и условия | |
| Цена: | 625 000 руб. в месяц + НДС 30 000 руб. за 1м2 в год + НДС Сообщить о снижении цены ![]() |
| Форма налогообложения собственника: | НДС |
| Обеспечительный платеж: | 1 месяц |
| Эксплуатационные расходы включены: | ✓ |
| Характеристики | |
| Тип здания: | Торговые центры |
| Отдельный вход: | ✓ |
| Этажность здания: | 2 |
| Наличие кондиционирования: | ✓ |
| Наличие паркинга: | ✓ |
| Кол-во парковочных мест: | 150 |
| Наличие общепита в здании: | ✓ |
| Тип окон: | витринные |
| Кол-во телефонных линий: | 1 |
| Электрическая мощность, кВт: | 30 |
| Описание | |
|
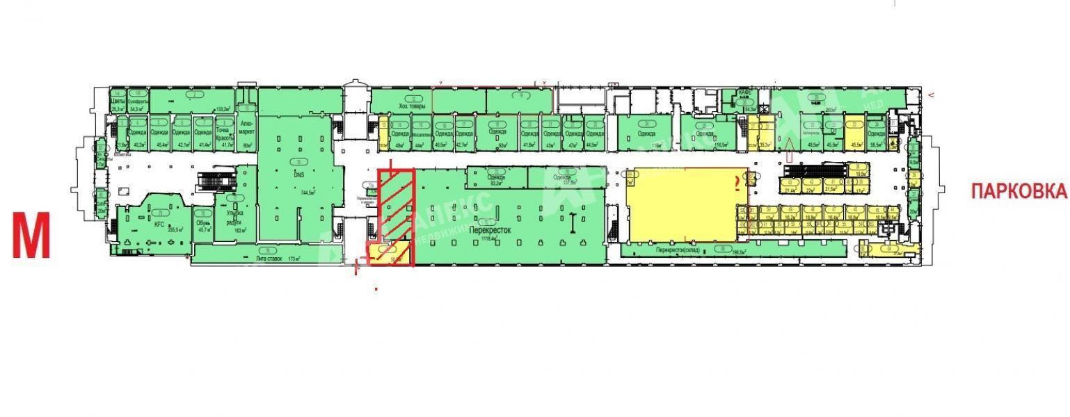
Лот №937976 Аренда площади 250 м2 в ТЦ Марьинский Пассаж на выходе м.Марьино. Проездная линия, рядом большой жилой массив. Помещение на 1м этаже. Трафик метро, ТЦ и района. Прикассовая зона супермаркета Перекресток. Якорные арендаторы: KFC, DNS, Улыбка радуги, Чайхана. Зальная планировка, ширина 11м. Возможен отдельный вход. кВт - по запросу. Все центральные коммуникации. Реклама на фасаде ТЦ. Зальная планировка. Возможный профиль: Услуги, Сервис, Ремонт, Банк, Ломбард, Ателье, Химчистка, ТНП, Цветы, Одежда, Обувь, Секонд хенд, Для Дома, Для Ремонта, Стройматериалы, Интернет магазин, Пункт самовывоза, Выдачи, Доставка, ДаркКитчен, Даркстор, Товары, Шоурум, Бутик, Ювелирный, Интерьер, Посуда, Игрушки, Канцтовары, Подарки, Сувениры, Косметика, Бижутерия, Аксессуары, Парфюмерия. Стоимость аренды: 30 000 руб/м2/год (625 000 руб. в месяц), НДС оплачивается дополнительно. В цену включено: эксплуатационные расходы. В цену не включено: затраты на электричество, коммунальные расходы, уборка.
Чтобы получить ПОДРОБНУЮ ПРЕЗЕНТАЦИЮ С ПЛАНИРОВКОЙ И ФОТОГРАФИЯМИ на этот объект, звоните. Высылаем в течение 15 минут по запросу! |
|
| Контактная информация | |
| Лот №: | 937976 |
| Контактное лицо: | Алексей Владимирович |
| Телефон: | 8 (495) 822-78-71 доб.217 |


