Описание объекта лот №: 936534
| Возможное использование: | Офисы |
| Операция: | Аренда |
| Тип аренды: | Прямая аренда |
| Площадь: | 618 кв. м |
| Этаж: | 6 |
| Местоположение | |
| Округ: | СВАО |
| Метро: | Свиблово, Ботанический сад, Бабушкинская |
| От метро: | 1 мин. пешком |
| Улица: | Снежная ул |
| ИФНС | № 7716 |
| Стоимость и условия | |
| Цена: | 1 854 000 руб. в месяц 36 000 руб. за 1м2 в год Сообщить о снижении цены ![]() |
| Форма налогообложения собственника: | НДС |
| Обеспечительный платеж: | 2 месяца |
| Эксплуатационные расходы включены: | ✓ |
| Характеристики | |
| Тип здания: | Бизнес центры класса B |
| Этажность здания: | 14 |
| Наличие кондиционирования: | ✓ |
| Наличие лифта: | ✓ |
| Наличие общепита в здании: | ✓ |
| Описание | |
|
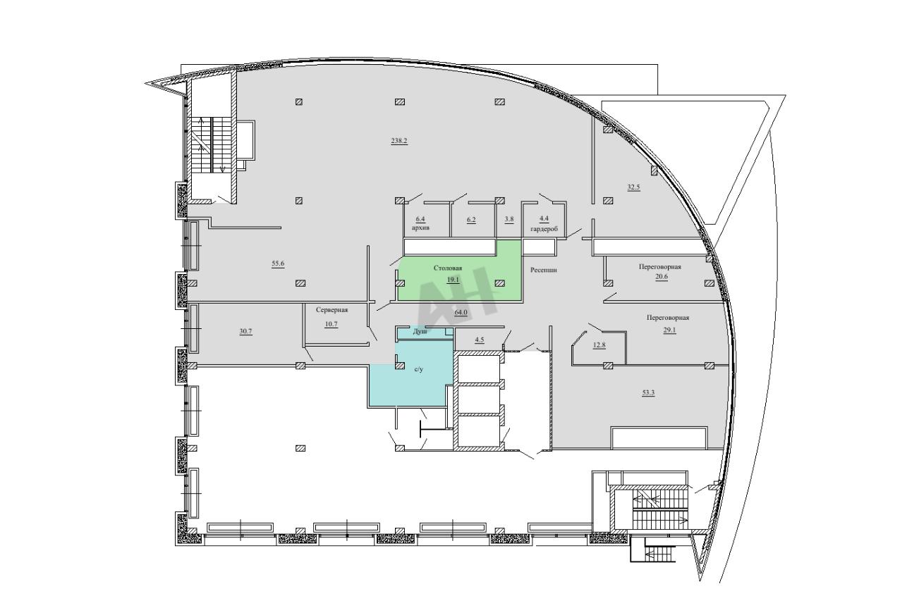
Лот №936534 Сдается офисное помещение площадью 618 кв.м на шестом этаже. Планировка смешанная и включает холл с ресепшен, открытое пространство, столовую для сотрудников, отдельные кабинеты, серверную комнату и помещение под архив. Объект расположен в многофункциональном комплексе на севере Москвы в шаговой доступности от станции метро «Свиблово». Здание отличается яркой архитектурой и объединяет офисную башню с районным торговым центром. Для арендаторов предусмотрен Переход из Бизнес центра в Торговой Центр через лифты на 3-ем этаже, где представлены торговая галерея, рестораны магазины и якорные арендаторы. Помещение полностью обеспечено централизованными коммуникациями, современными системами вентиляции и кондиционирования, охранно-пожарной сигнализацией, системами дымоудаления и пожаротушения, а также полным комплектом телекоммуникаций. Для арендаторов доступна наземная бесплатная парковка на 50 машино-мест. Также имеется возможность размещения на подземном паркинге по стоимости 15 000 рублей за одно машино-место. Стоимость аренды: 36 000 руб/м2/год (1 854 000 руб. в месяц). В цену включено: эксплуатационные расходы. В цену не включено: затраты на электричество, коммунальные расходы, уборка.
Чтобы получить ПОДРОБНУЮ ПРЕЗЕНТАЦИЮ С ПЛАНИРОВКОЙ И ФОТОГРАФИЯМИ на этот объект, звоните. Высылаем в течение 15 минут по запросу! |
|
| Контактная информация | |
| Лот №: | 936534 |
| Контактное лицо: | Дмитрий Викторович |
| Телефон: | 8 (495) 822-78-71 доб.220 |


