Описание объекта лот №: 929351
| Возможное использование: | Свободное назначение Аптеки Банки Бытовые услуги Магазины Медцентры Офисы Салоны красоты Шоурумы Новостройки |
| Операция: | Продажа |
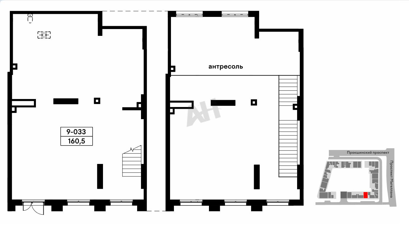
| Площадь: | 160.5 кв. м |
| Этаж: | 1 |
| Местоположение | |
| Округ: | ЮВАО |
| Метро: | Авиамоторная, Москва-Товарная (МЦД), Калитники (МЦД) |
| Улица: | 2-я Кабельная ул |
| Стоимость и условия | |
| Цена: | 0 Посмотреть аналогичные объекты |
| Срок окупаемости: | 9 лет |
| Характеристики | |
| Тип здания: | Жилые дома |
| Этажность здания: | 16 |
| Описание | |
|
Лот №929351 Представлено коммерческое помещение общей площадью 160,5 м² с потолками 4,07 м. Помещение свободного назначения не имеет отделки и обладает разрешенной мощностью 32,5 кВт. Вентиляционная система представлена шахтами Ш200 и Ш100. Помещение расположено на одном этаже, имеет один вход и не оснащено витринным остеклением. Застройщик А101 предлагает специальные условия финансирования покупки. Действует программа с возвратом ипотеки 1,01% на коммерческие помещения с первоначальным взносом от 30%. Также доступна ипотека на коммерческие помещения от 4,5%. Объект расположен в жилом районе «Прокшино» в юго-западной части Москвы, в 7 км от МКАД и в 500 метрах от одноимённой станции метро. В составе формирующегося кластера Прокшино запланировано строительство крупного торгово-офисного центра и всесезонного спортивно-развлекательного комплекса. Инфраструктура района, включая объекты для работы и отдыха, создается в шаговой доступности. Район обладает развитой транспортной доступностью: 100 метров до выезда на СБВ, 3 км до Калужского шоссе и 3 км до Киевского шоссе. Помещения в районе представлены в различных форматах с возможностью свободной планировки и объединения лотов. Срок сдачи объекта запланирован на второй квартал 2028 года.
Чтобы получить ПОДРОБНУЮ ПРЕЗЕНТАЦИЮ С ПЛАНИРОВКОЙ И ФОТОГРАФИЯМИ на этот объект, звоните. Высылаем в течение 15 минут по запросу! |
|
| Доп. услуги: | - возможна продажа в кредит |
| Контактная информация | |
| Лот №: | 929351 |
| Контактное лицо: | Апекс Недвижимость |
| Телефон: | 7 (495) 369-01-55 |

