Описание объекта лот №: 915040
| Возможное использование: | Свободное назначение Бытовые услуги Кафе/рестораны Магазины Офисы Салоны красоты Шоурумы |
| Операция: | Аренда |
| Тип аренды: | Прямая аренда |
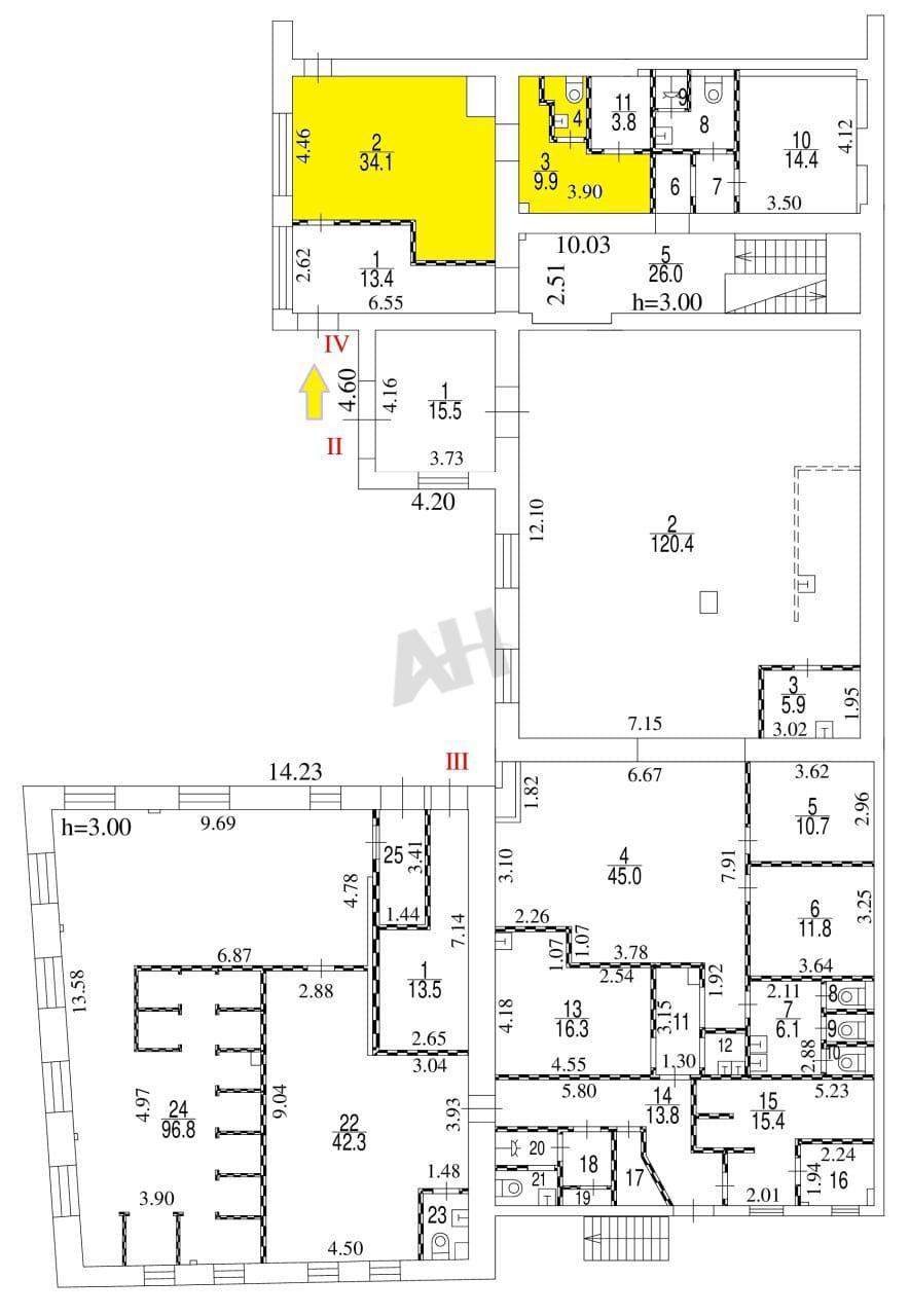
| Площадь: | 45 кв. м |
| Этаж: | 1 |
| Местоположение | |
| Округ: | ЦАО |
| Метро: | Третьяковская, Павелецкая, Полянка |
| От метро: | 6 мин. пешком |
| Улица: | Новокузнецкая ул |
| ИФНС | № 7705 |
| Стоимость и условия | |
| Цена: | 250 001 руб. в месяц 66 667 руб. за 1м2 в год Сообщить о снижении цены ![]() |
| Форма налогообложения собственника: | НДС |
| Обеспечительный платеж: | 2 месяца |
| Эксплуатационные расходы включены: | ✓ |
| Характеристики | |
| Тип здания: | Административные здания |
| Этажность здания: | 2 |
| Тип окон: | обычные |
| Описание | |
|
Лот №915040 Сдается помещение свободного назначения, 1 этаж. 45 кв.м. Потолки от 3.25 до 3.5 метра. Зальная планировка с большим окном, и подсобка под склад. Сан узел. Все коммуникации центральные. Установлена система кондиционирования и вентиляции. Парковка перед зданием. Соседи кальянная Мята лаундж и Ла мода. По электричеству 30 кВт. Метро Новокузнецкая в шаговой доступности. Любой формат можно рассмотреть, кроме алкоголя и табака. Стоимость аренды: 66 667 руб/м2/год (250 002 руб. в месяц). В цену включено: эксплуатационные расходы. В цену не включено: затраты на электричество, коммунальные расходы, уборка.
Чтобы получить ПОДРОБНУЮ ПРЕЗЕНТАЦИЮ С ПЛАНИРОВКОЙ И ФОТОГРАФИЯМИ на этот объект, звоните. Высылаем в течение 15 минут по запросу! |
|
| Контактная информация | |
| Лот №: | 915040 |
| Контактное лицо: | Дмитрий Викторович |
| Телефон: | 8 (495) 822-78-71 доб.220 |


