Описание объекта лот №: 875286
| Возможное использование: | Свободное назначение Автосалоны Магазины Офисы Фитнес Шоурумы |
| Операция: | Аренда |
| Площадь: | 2000 кв. м |
| Этаж: | 1 |
| Местоположение | |
| Округ: | ЗАО |
| Метро: | Мичуринский проспект, Аминьевская, Раменки |
| От метро: | 5 мин. пешком |
| Улица: | Лобачевского ул |
| ИФНС | № 7729 |
| Стоимость и условия | |
| Цена: | 5 333 333 руб. в месяц 32 000 руб. за 1м2 в год Сообщить о снижении цены ![]() |
| Форма налогообложения собственника: | НДС |
| Обеспечительный платеж: | 1 месяц |
| Эксплуатационные расходы включены: | ✓ |
| Характеристики | |
| Отдельный вход: | ✓ |
| Этажность здания: | 7 |
| Наличие кондиционирования: | ✓ |
| Наличие лифта: | ✓ |
| Возможность подъезда фуры: | ✓ |
| Наличие пандуса: | ✓ |
| Круглосуточный доступ: | ✓ |
| Наличие паркинга: | ✓ |
| Кол-во парковочных мест: | 30 |
| Описание | |
|
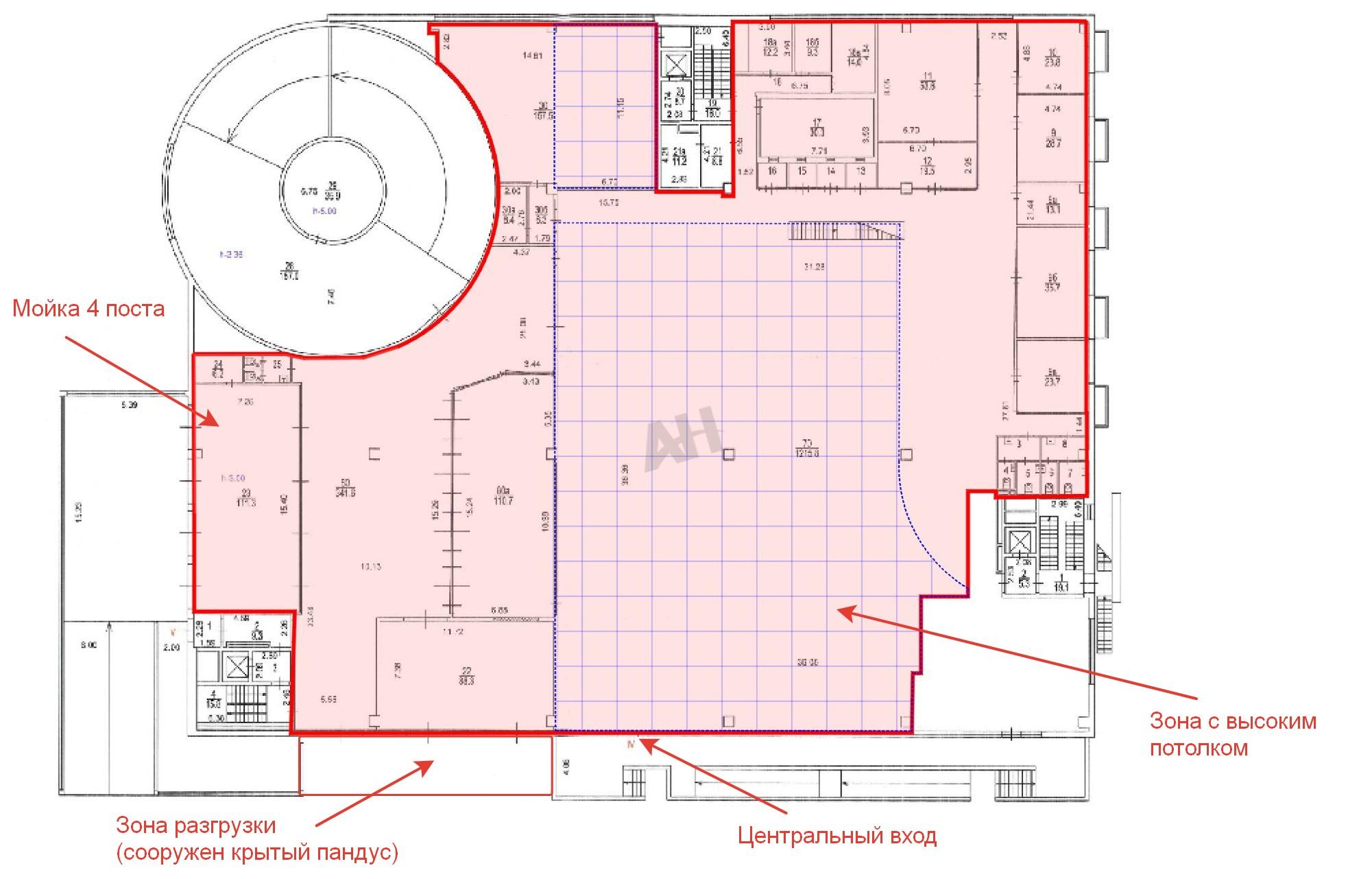
Лот №875286 Предлагается помещение 2000 м2 на 1 этаже в 5 мин от м. Мичуринский проспект. Удобный заезд с улицы Лобачевского и Мичуринского проспекта. Отдельно стоящее здание, шаг колонн 12х18 м, потолки 6м (до перекрытия). Приточно-вытяжная вентиляция, центральное кондиционирование, система пожаротушения, видеонаблюдение. Расположение на 1й линии по пути к жилым комплексам бизнес-класса компании Дон-Строй (Событие, Река, Огни). Отличное помещение под автосалон, производство, склад, шоурум, офис, фитнес. Стоимость аренды: 32 000 руб/м2/год (5 333 334 руб. в месяц). В цену включено: эксплуатационные расходы.
Чтобы получить ПОДРОБНУЮ ПРЕЗЕНТАЦИЮ С ПЛАНИРОВКОЙ И ФОТОГРАФИЯМИ на этот объект, звоните. Высылаем в течение 15 минут по запросу! |
|
| Контактная информация | |
| Лот №: | 875286 |
| Контактное лицо: | Андрей Валерьевич |
| Телефон: | 8 (495) 822-78-71 доб.253 |


