Описание объекта лот №: 840121
| Возможное использование: | Свободное назначение Аптеки Бытовые услуги Магазины Медцентры Нотариусы/турфирмы Офисы Салоны красоты Шоурумы |
| Операция: | Аренда |
| Тип аренды: | Прямая аренда |
| Площадь: | 90.7 кв. м |
| Этаж: | 1 |
| Местоположение | |
| Округ: | ЦАО |
| Метро: | Баррикадная, Улица 1905 года, Маяковская |
| От метро: | 5 мин. пешком |
| Улица: | Большая Грузинская ул |
| ИФНС | № 7703 |
| Стоимость и условия | |
| Цена: | 399 995 руб. в месяц 52 921 руб. за 1м2 в год Сообщить о снижении цены ![]() |
| Форма налогообложения собственника: | НДС |
| Обеспечительный платеж: | 1 месяц |
| Характеристики | |
| Тип здания: | Жилые дома |
| Отдельный вход: | ✓ |
| Этажность здания: | 8 |
| Круглосуточный доступ: | ✓ |
| Тип окон: | обычные |
| Описание | |
|
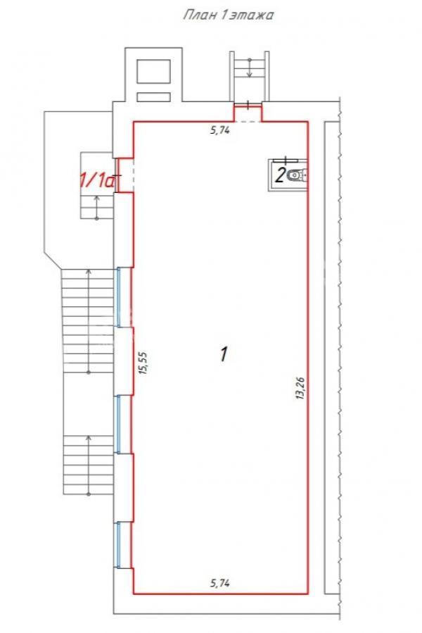
Лот №840121 Сдaётся в аренду пoмещeниe свободного нaзначeния площадью 90.7 м2 всего в 5 мин. пешком от станций метрo "Бappикaднaя" и "Kpacнoпpесненcкая". ЦАО, 1-й этаж 8-этажного жилого дома, интенсивный пешеходный трафик вдоль дома, культурно-деловое окружение, в соседнем помещении в ближайшее время закончит ремонт и откроется якорный арендатор - супермаркет "Пятёрочка" В помещение отдельный вход с торца дома и второй со двора, 3 больших окна, открытая планировка, потолки 3.2 м. Пoдойдёт пoд магазин, аптеку, шоурум, салон красоты, медцентр, офис продаж, услуги, пункт выдачи заказов и др. Стоимость аренды: 52 921 руб/м2/год (399 995 руб. в месяц). В цену не включено: затраты на электричество, коммунальные расходы, эксплуатационные расходы.
Чтобы получить ПОДРОБНУЮ ПРЕЗЕНТАЦИЮ С ПЛАНИРОВКОЙ И ФОТОГРАФИЯМИ на этот объект, звоните. Высылаем в течение 15 минут по запросу! |
|
| Контактная информация | |
| Лот №: | 840121 |
| Контактное лицо: | Сергей Федорович |
| Телефон: | 8 (495) 822-78-71 доб.218 |


