Описание объекта лот №: 786729
| Возможное использование: | Свободное назначение Бытовые услуги Магазины Медцентры Фитнес Фотостудии Шоурумы |
| Операция: | Аренда |
| Тип аренды: | Прямая аренда |
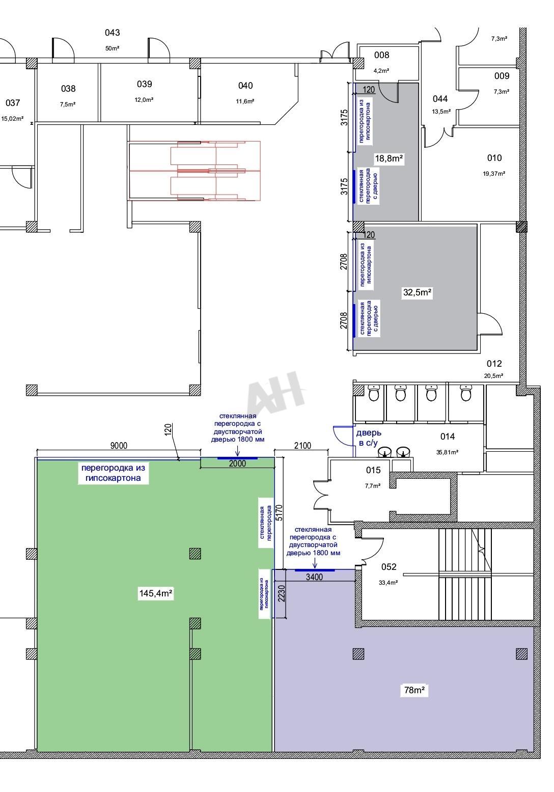
| Площадь: | 239.6 кв. м |
| Этаж: | цоколь |
| Местоположение | |
| Город: | Мытищи, Королев |
| Улица: | Ярославское шоссе |
| ИФНС | № 5029 |
| Стоимость и условия | |
| Цена: | 299 500 руб. в месяц 15 000 руб. за 1м2 в год Сообщить о снижении цены ![]() |
| Обеспечительный платеж: | 1 месяц |
| Характеристики | |
| Тип здания: | Торговые центры |
| Этажность здания: | 4 |
| Наличие кондиционирования: | ✓ |
| Наличие лифта: | ✓ |
| Наличие паркинга: | ✓ |
| Тип окон: | обычные |
| Описание | |
|
Лот №786729 Предлагается в аренду помещение свободного назначения общей площадью 239.6 квадратных метров. Объект расположен на цокольном этаже торгового центра. Помещение характеризуется открытой планировкой, что предоставляет широкие возможности для функционального зонирования. Высота потолков составляет 4 метра. Объект оборудован всеми необходимыми центральными коммуникациями, включая приточно-вытяжную вентиляцию. Имеется собственная мокрая точка. Для арендаторов и их клиентов доступна охраняемая парковка. Стоимость аренды: 15 000 руб/м2/год (299 500 руб. в месяц). В цену не включено: затраты на электричество, эксплуатационные расходы.
Чтобы получить ПОДРОБНУЮ ПРЕЗЕНТАЦИЮ С ПЛАНИРОВКОЙ И ФОТОГРАФИЯМИ на этот объект, звоните. Высылаем в течение 15 минут по запросу! |
|
| Контактная информация | |
| Лот №: | 786729 |
| Контактное лицо: | Алексей Юрьевич |
| Телефон: | 8 (495) 822-78-71 доб.248 |


