Описание объекта лот №: 765253
| Возможное использование: | Свободное назначение Аптеки Банки Бытовые услуги Ломбарды Кафе/рестораны Магазины Медцентры Нотариусы/турфирмы Салоны красоты Шоурумы |
| Операция: | Аренда |
| Тип аренды: | Прямая аренда |
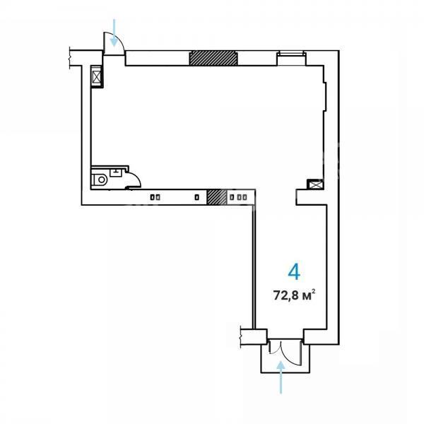
| Площадь: | 72.8 кв. м |
| Этаж: | 1 |
| Местоположение | |
| Округ: | СЗАО |
| Метро: | Улица 1905 года, Беговая, Краснопресненская |
| От метро: | 4 мин. пешком |
| Улица: | Звенигородское ш |
| ИФНС | № 7703 |
| Стоимость и условия | |
| Цена: | 499 996 руб. в месяц 82 417 руб. за 1м2 в год Сообщить о снижении цены ![]() |
| Обеспечительный платеж: | 1 месяц |
| Характеристики | |
| Тип здания: | Жилые дома |
| Отдельный вход: | ✓ |
| Этажность здания: | 8 |
| Круглосуточный доступ: | ✓ |
| Тип окон: | обычные |
| Описание | |
|
Лот №765253 Сдаётся в аренду помещение свободного назначения площадью 72.8 м2 в 4 мин. пешком от станции метро "Улица 1905 года" на 1-ом этаже 8-этажного жилого дома. Первая линия, интенсивный пешеходный трафик, отличная видимость объекта, в окружении находятся ТЦ "Электроника на Пресне", жилой и деловой комплекс "Lucky", ЖК "Eleven", бизнес-центры "Звенигородский" и "Marr Plaza", Университет прокуратуры РФ, ЦНИИ автоматики и гидравлики. В помещение 2 отдельных входа: с улицы и со двора, открытая планировка, подготовлено под чистовую отделку, потолки 3,5 м. Свободное назначение: магазин, аптека, шоурум, кафе, кофейня, банк, ломбард, салон красоты, медцентр, офис продаж, цветы и др. Стоимость аренды: 82 417 руб/м2/год (499 997 руб. в месяц). В цену не включено: затраты на электричество, коммунальные расходы, эксплуатационные расходы.
Чтобы получить ПОДРОБНУЮ ПРЕЗЕНТАЦИЮ С ПЛАНИРОВКОЙ И ФОТОГРАФИЯМИ на этот объект, звоните. Высылаем в течение 15 минут по запросу! |
|
| Контактная информация | |
| Лот №: | 765253 |
| Контактное лицо: | Сергей Федорович |
| Телефон: | 8 (495) 822-78-71 доб.218 |


