Описание объекта лот №: 758622
| Возможное использование: | Офисы |
| Операция: | Аренда |
| Тип аренды: | Прямая аренда |
| Площадь: | 541 кв. м |
| Этаж: | 9 |
| Местоположение | |
| Округ: | САО |
| Метро: | Речной вокзал, Водный стадион, Коптево (МЦК) |
| От метро: | 14 мин. пешком |
| Улица: | Смольная ул |
| ИФНС | № 7743 |
| Стоимость и условия | |
| Цена: | 826 558 руб. в месяц + НДС 18 334 руб. за 1м2 в год + НДС Сообщить о снижении цены ![]() |
| Форма налогообложения собственника: | НДС |
| Обеспечительный платеж: | 1 месяц |
| Эксплуатационные расходы включены: | ✓ |
| Характеристики | |
| Тип здания: | Бизнес центры класса А |
| Этажность здания: | 15 |
| Наличие кондиционирования: | ✓ |
| Наличие лифта: | ✓ |
| Наличие пропускной системы: | ✓ |
| Круглосуточный доступ: | ✓ |
| Тип окон: | витринные |
| Описание | |
|
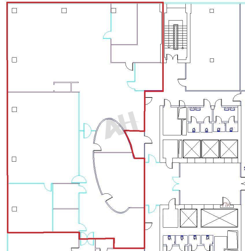
Лот №758622 Предлагается в аренду офисный блок общей площадью 541 кв.м. с учетом мест общего пользования. Помещение расположено в бизнес-центре класса Б+ по адресу: улица Смольная, дом 14. Планировка блока смешанная и включает два больших кабинета открытого типа, переговорную комнату, кабинет руководителя, а также дополнительные кабинеты и подсобные площади. Офисный блок находится в отдельном крыле этажа, где выполнен качественный офисный ремонт в состоянии за выздом арендатора. Бизнес-центр обладает развитой инфраструктурой, которая включает круглосуточную охрану, шесть современных лифтов, конференц-зал, объекты общественного питания и торговую зону. Панорамное остекление здания обеспечивает помещения естественным освещением и благоприятными видовыми характеристиками, что способствует созданию комфортного рабочего пространства. Для арендаторов доступна платная парковка на территории комплекса, рассчитанная на 300 машиномест. Близкое расположение парка Дружбы, торгового центра «Флотилия» и фитнес-центров формирует развитую среду для деловой активности и отдыха. Стоимость аренды не включает услуги связи, уборку и парковку, которые оплачиваются отдельно. Стоимость аренды: 18 334 руб/м2/год (826 558 руб. в месяц), НДС оплачивается дополнительно. В цену включено: эксплуатационные расходы. В цену не включено: коммунальные расходы.
Чтобы получить ПОДРОБНУЮ ПРЕЗЕНТАЦИЮ С ПЛАНИРОВКОЙ И ФОТОГРАФИЯМИ на этот объект, звоните. Высылаем в течение 15 минут по запросу! |
|
| Контактная информация | |
| Лот №: | 758622 |
| Контактное лицо: | Светлана Анатольевна |
| Телефон: | 8 (495) 822-78-71 доб.236 |


