Описание объекта лот №: 1085112
| Возможное использование: | Офисы |
| Операция: | Аренда |
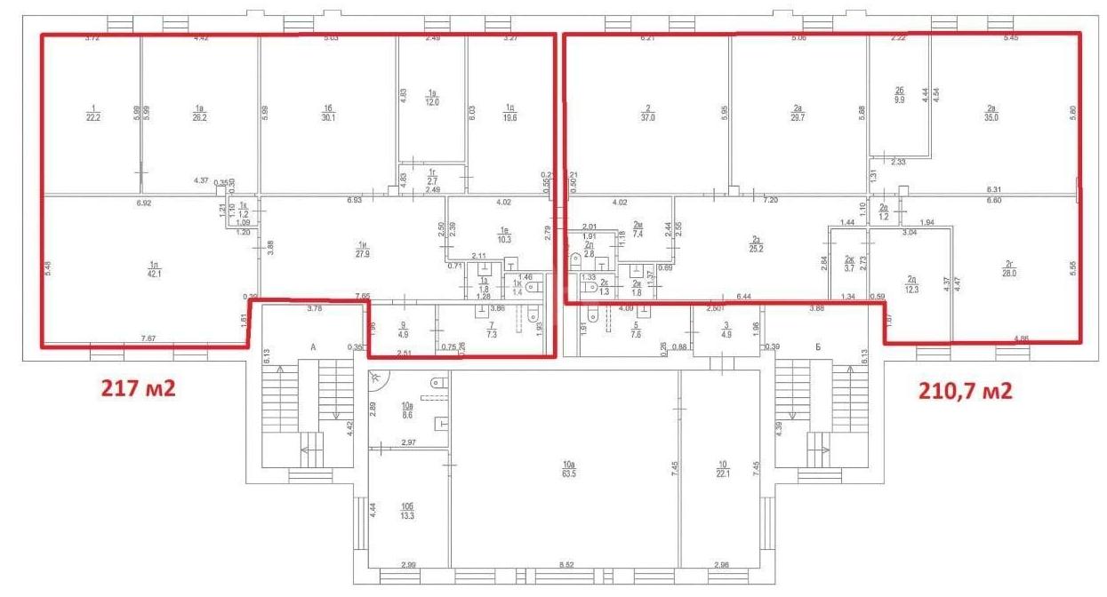
| Площадь: | 210.7 кв. м |
| Этаж: | 4 |
| Местоположение | |
| Округ: | ЦАО |
| Метро: | Красные ворота, Курская, Чистые пруды |
| Улица: | Старая Басманная ул |
| ИФНС | № 7701 |
| Стоимость и условия | |
| Цена: | 737 450 руб. в месяц 42 000 руб. за 1м2 в год Сообщить о снижении цены ![]() |
| Обеспечительный платеж: | 3 месяца |
| Коммунальные услуги включены: | ✓ |
| Эксплуатационные расходы включены: | ✓ |
| Характеристики | |
| Тип здания: | Бизнес центры класса B |
| Этажность здания: | 4 |
| Наличие паркинга: | ✓ |
| Описание | |
|
Лот №1085112 Предлагается в аренду комфортабельный офис общей площадью 210.70 квадратных метров. Помещение расположено на четвертом этаже особняка по адресу: Старая Басманная, дом 7. Локация характеризуется развитой транспортной доступностью. Станции метро «Красные Ворота» и «Курская» находятся в девяти минутах ходьбы. Условия аренды предусматривают выгодные ставки. Стоимость аренды: 42 000 руб/м2/год (737 450 руб. в месяц). В цену включено: коммунальные расходы, эксплуатационные расходы. В цену не включено: затраты на электричество, уборка.
Чтобы получить ПОДРОБНУЮ ПРЕЗЕНТАЦИЮ С ПЛАНИРОВКОЙ И ФОТОГРАФИЯМИ на этот объект, звоните. Высылаем в течение 15 минут по запросу! |
|
| Контактная информация | |
| Лот №: | 1085112 |
| Контактное лицо: | Елена |
| Телефон: | 8 (495) 822-78-71 доб.267 |


