Описание объекта лот №: 1083737
| Возможное использование: | Офисы |
| Операция: | Аренда |
| Тип аренды: | Прямая аренда |
| Площадь: | 226 кв. м |
| Этаж: | 3 |
| Местоположение | |
| Округ: | ЦАО |
| Метро: | Сухаревская, Цветной бульвар, Достоевская |
| От метро: | 5 мин. пешком |
| Улица: | Цветной б-р |
| ИФНС | № 7707 |
| Стоимость и условия | |
| Цена: | 904 000 руб. в месяц + НДС 48 000 руб. за 1м2 в год + НДС Сообщить о снижении цены ![]() |
| Форма налогообложения собственника: | НДС |
| Обеспечительный платеж: | 3 месяца |
| Эксплуатационные расходы включены: | ✓ |
| Характеристики | |
| Тип здания: | Бизнес центры класса А |
| Этажность здания: | 5 |
| Наличие кондиционирования: | ✓ |
| Наличие лифта: | ✓ |
| Наличие пропускной системы: | ✓ |
| Круглосуточный доступ: | ✓ |
| Наличие паркинга: | ✓ |
| Наличие общепита в здании: | ✓ |
| Тип окон: | обычные |
| Описание | |
|
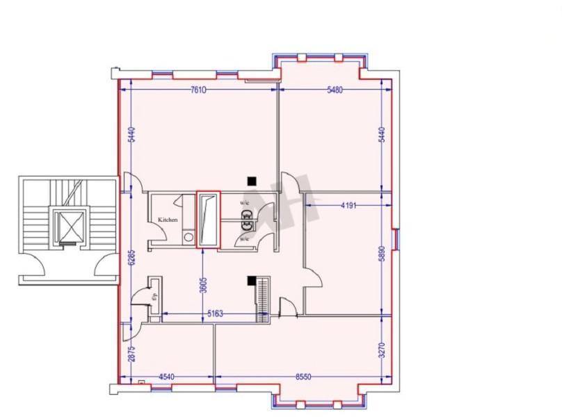
Лот №1083737 В аренду предлагается офисный блок общей площадью 226 м², расположенный на третьем этаже бизнес-центра класса В+ «Мосэнка II». Здание находится на Садовом кольце, в пяти минутах ходьбы от станции метро «Цветной бульвар». Помещение имеет преимущественно кабинетную планировку и оснащено собственными санузлами и кухней. Для арендаторов предусмотрено достаточное количество парковочных мест, а в здании развита вся необходимая инфраструктура. Обеспечение безопасности и комфорта соответствует высоким стандартам. В бизнес-центре действует круглосуточная система контроля доступа, центральная система кондиционирования и приточно-вытяжная вентиляция. Установлена автоматическая система пожаротушения с применением воды, газа и других средств. Стоимость аренды: 48 000 руб/м2/год (904 000 руб. в месяц), НДС оплачивается дополнительно. В цену включено: эксплуатационные расходы. В цену не включено: затраты на электричество, коммунальные расходы.
Чтобы получить ПОДРОБНУЮ ПРЕЗЕНТАЦИЮ С ПЛАНИРОВКОЙ И ФОТОГРАФИЯМИ на этот объект, звоните. Высылаем в течение 15 минут по запросу! |
|
| Контактная информация | |
| Лот №: | 1083737 |
| Контактное лицо: | Егор Викторович |
| Телефон: | 8 (495) 822-78-71 доб.221 |


