Описание объекта лот №: 1080962
| Возможное использование: | Офисы |
| Операция: | Аренда |
| Тип аренды: | Прямая аренда |
| Площадь: | 242 кв. м |
| Этаж: | 2 |
| Местоположение | |
| Округ: | ЦАО |
| Метро: | Полянка, Третьяковская, Октябрьская |
| От метро: | 2 мин. пешком |
| Улица: | Малая Полянка ул |
| ИФНС | № 7706 |
| Стоимость и условия | |
| Цена: | 3 250 000 руб. в месяц 161 157 руб. за 1м2 в год Сообщить о снижении цены ![]() |
| Обеспечительный платеж: | 2 месяца |
| Клининг входит в договор аренды: | ✓ |
| Коммунальные услуги включены: | ✓ |
| Эксплуатационные расходы включены: | ✓ |
| Электроэнергия включена: | ✓ |
| Характеристики | |
| Тип здания: | Бизнес центры класса А |
| Этажность здания: | 10 |
| Наличие мебели: | ✓ |
| Наличие кондиционирования: | ✓ |
| Наличие лифта: | ✓ |
| Круглосуточный доступ: | ✓ |
| Описание | |
|
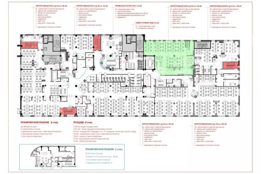
Лот №1080962 Комфортабельный офис 242м2 расположен на 2 этаже жилого комплекса Онегин. В офисе доступны 50 рабочих мест, гардеробная и кофе-поинт с лаунж-зоной. Для вашей команды предусмотрен собственный ресепшен блока, один кабинет на персональное рабочее место, акустическая кабина и переговорная комната «челночная» на шесть человек. В стоимость аренды включен комплекс услуг: круглосуточная охрана территории, ежедневная уборка, обеспечение кофе и чаем, высокоскоростной интернет и IT-инфраструктура. Также предоставляется вся необходимая мебель, доступ к переговорным комнатам, расходные материалы и техническое обслуживание. Работу офиса обеспечивает профессиональная команда ресепшен и управляющей службы. Офис доступен с сентября 2026 г. Офисный блок расположен в историческом центре Москвы. Деловые, культурные и инфраструктурные объекты города находятся в шаговой доступности. Стоимость аренды: 161 157 руб/м2/год (3 250 000 руб. в месяц). В цену включено: затраты на электричество, коммунальные расходы, уборка, эксплуатационные расходы.
Чтобы получить ПОДРОБНУЮ ПРЕЗЕНТАЦИЮ С ПЛАНИРОВКОЙ И ФОТОГРАФИЯМИ на этот объект, звоните. Высылаем в течение 15 минут по запросу! |
|
| Контактная информация | |
| Лот №: | 1080962 |
| Контактное лицо: | Елена |
| Телефон: | 8 (495) 822-78-71 доб.267 |


