Описание объекта лот №: 1076883
| Возможное использование: | Офисы |
| Операция: | Аренда |
| Тип аренды: | Прямая аренда |
| Площадь: | 946 кв. м |
| Этаж: | 1 |
| Местоположение | |
| Округ: | ВАО |
| Метро: | Измайлово (МЦК), Семеновская, Преображенская площадь |
| От метро: | 7 мин. пешком |
| Улица: | Мироновская ул |
| ИФНС | № 7719 |
| Стоимость и условия | |
| Цена: | 2 005 520 руб. в месяц + НДС 25 440 руб. за 1м2 в год + НДС Сообщить о снижении цены ![]() |
| Форма налогообложения собственника: | НДС |
| Обеспечительный платеж: | 2 месяца |
| Эксплуатационные расходы включены: | ✓ |
| Характеристики | |
| Этажность здания: | 3 |
| Наличие кондиционирования: | ✓ |
| Наличие лифта: | ✓ |
| Наличие пропускной системы: | ✓ |
| Круглосуточный доступ: | ✓ |
| Наличие паркинга: | ✓ |
| Электрическая мощность, кВт: | 90 |
| Описание | |
|
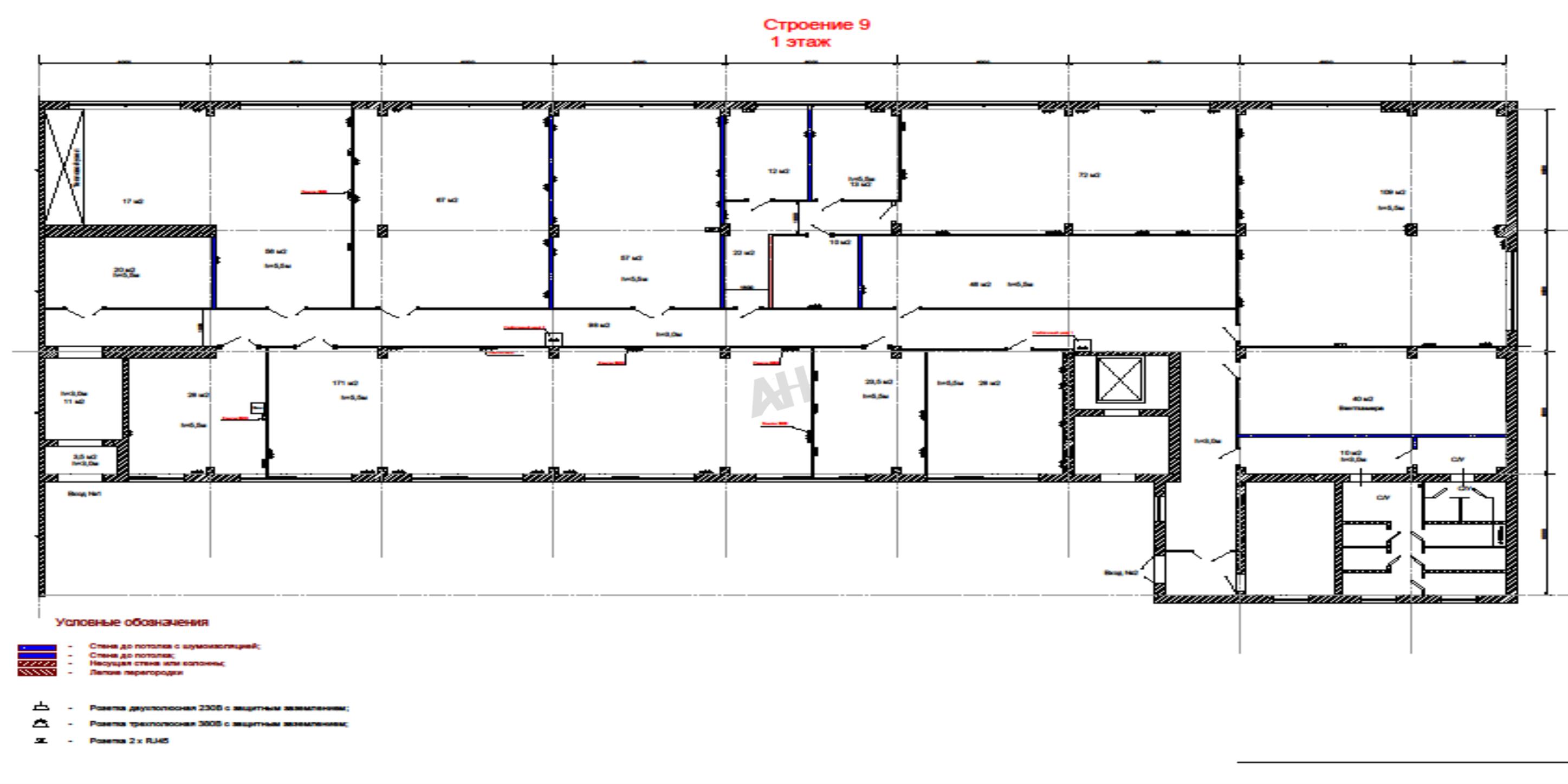
Лот №1076883 Сдается офисно-складское помещение 1 этаж, 946 м2, кабинетная планировка, туалеты, приточно- вытяжная вентиляция, кондиционирование. 2 входа, второй для разгрузки/погрузки. Максимальная мощность: 90 кВт. Высота потолка от 3 до 5 метров. Налоговая: 19. Система пожарной сигнализации. Круглосуточная охрана, видеонаблюдение, доступ 24/7, пропускной режим. Въезд на территорию бесплатный. Возможен долгосрочный договор. Стоимость аренды: 25 440 руб/м2/год (2 005 520 руб. в месяц), НДС оплачивается дополнительно. В цену включено: эксплуатационные расходы. В цену не включено: затраты на электричество, коммунальные расходы, уборка.
Чтобы получить ПОДРОБНУЮ ПРЕЗЕНТАЦИЮ С ПЛАНИРОВКОЙ И ФОТОГРАФИЯМИ на этот объект, звоните. Высылаем в течение 15 минут по запросу! |
|
| Контактная информация | |
| Лот №: | 1076883 |
| Контактное лицо: | Михаил Вячеславович |
| Телефон: | 8 (495) 822-78-71 доб.216 |


