Описание объекта лот №: 1073555
| Возможное использование: | Свободное назначение Медцентры Нотариусы/турфирмы Офисы Шоурумы |
| Операция: | Аренда |
| Тип аренды: | Прямая аренда |
| Площадь: | 692 кв. м |
| Этаж: | 1 - 2-й |
| Местоположение | |
| Округ: | ЦАО |
| Метро: | Курская, Красные ворота, Чистые пруды |
| Улица: | Земляной Вал ул |
| ИФНС | № 7709 |
| Стоимость и условия | |
| Цена: | 2 750 000 руб. в месяц 47 688 руб. за 1м2 в год Сообщить о снижении цены ![]() |
| Обеспечительный платеж: | 1 месяц |
| Эксплуатационные расходы включены: | ✓ |
| Характеристики | |
| Тип здания: | Особняки |
| Отдельный вход: | ✓ |
| Этажность здания: | 2 |
| Наличие мебели: | ✓ |
| Наличие кондиционирования: | ✓ |
| Круглосуточный доступ: | ✓ |
| Тип окон: | обычные |
| Электрическая мощность, кВт: | 98 |
| Описание | |
|
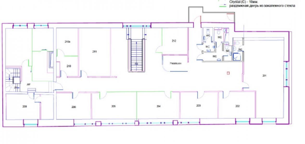
Лот №1073555 Предлагается в аренду особняк, площадью 692м2, удобно расположенный в исторической части Московского центра. Локация: от метро Таганская Кольцевая 4 мин, от Кремля 3,5км, Третьяковская галерея 3,5км, Большой театр 3,2км, рядом отель Movenpick 5*. Здание состоит: цокольный , 1 и 2 этажи. Площадь цокольного этажа 132,2м2, высота потолков 3м 1 этаж 248,6м2, высота потолков 2,7м2 2 этаж 310,3м2, высота 5м. Здание полностью готово к интенсивной эксплуатации. Легкие перегородки позволяют адаптировать офис под ваши задачи. В кабинете руководителя предусмотрен отдельный санузел с душевой зоной. Здание имеет три отдельных входа со стороны Земляного вала. Электрическая мощность 98Квт. Климат: Современные системы вентиляции и кондиционирования. Здание интегрировано в систему быстрого реагирования Росгвардии. Здание полностью прошито структурированной кабельной системой. серверная комната подготовлена, рабочие места в каждом кабинете укомплектованы сетевыми розетками -Plug&Play. Видеонаблюдение и контроль доступа уже интегрированы в систему безопасности. а цокольном этаже есть спецхранилище. Земля в долгосрочной аренде. Доступ 24/7. В здании предусмотрена столовая, может быть трансформирована в лаунж-зону или зал для совещаний. Отреставрированный арочный потолок 1836 года, высота потолков 3м. Территория со шлагбаумом а парковкой на 6-8 м/м. Пропуска на 4-6м/м для проезда через закрытую территорию отеля Movenpick прямо на Садовое кольцо. Можно сразу заезжать и работать. !!! Есть возможность увеличить площадь: в соседнее здание есть переходный блок с отдельным входом!!!! Организуем показ в удобное время! Стоимость аренды: 47 688 руб/м2/год (2 750 000 руб. в месяц). В цену включено: эксплуатационные расходы.
Чтобы получить ПОДРОБНУЮ ПРЕЗЕНТАЦИЮ С ПЛАНИРОВКОЙ И ФОТОГРАФИЯМИ на этот объект, звоните. Высылаем в течение 15 минут по запросу! |
|
| Контактная информация | |
| Лот №: | 1073555 |
| Контактное лицо: | Лидия Владимировна |
| Телефон: | 8 (495) 822-78-71 доб.240 |


