Описание объекта лот №: 1070178
| Возможное использование: | Свободное назначение Аптеки Банки Бытовые услуги Кафе/рестораны Магазины Медцентры Офисы Салоны красоты Сауны Столовые Фитнес Шоурумы |
| Операция: | Продажа |
| Площадь: | 633 кв. м |
| Этаж: | 1 - 3-й |
| Местоположение | |
| Город: | Развилки, Апаринки |
| Метро: | Зябликово, Шипиловская, Домодедовская |
| Улица: | Каширское шоссе |
| ИФНС | № 5003 |
| Стоимость и условия | |
| Цена: |
158 000 000 руб. Сообщить о снижении цены
|
| Форма налогообложения собственника: | НДС |
| Срок окупаемости: | 10 лет |
| Обеспечительный платеж: | Без залога |
| Характеристики | |
| Тип здания: | Административные здания |
| Отдельный вход: | ✓ |
| Этажность здания: | 3 |
| Наличие кондиционирования: | ✓ |
| Возможность подъезда фуры: | ✓ |
| Наличие пандуса: | ✓ |
| Круглосуточный доступ: | ✓ |
| Наличие паркинга: | ✓ |
| Тип окон: | обычные |
| Электрическая мощность, кВт: | 120 |
| Описание | |
|
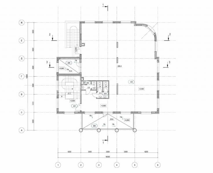
Лот №1070178 Продажа здания в ЖК Римский на первой линии жилого комплекса, который состоит из 7 корпусов переменной этажности (от 4 до 17 этажей), рассчитанных на 5 097 квартир. Создан плотный жилой массив, что формирует интенсивный пешеходный и автомобильный трафик, который создают жители ближайшего частного сектора. Здание хорошо просматривается с дороги, подходит для различных видов бизнеса, рядом остановка общественного транспорта, парковка для гостей и жителей комплекса. Технические параметры: Площадь подвала: 249,5 м2(высота потолка 2,15 м) Площадь 1 этажа: 248,1 м2 (высота потолка 3,9 м) Площадь 2 этажа: 274,3 кв. м2 (высота потолка 3,9 м) Площадь антресоли 2 этажа: 107,5 кв. м. (высота потолка 3 м) Электрическая мощность: 120 кВт. Входы: два отдельных. Земельный участок: 8 сот. (в собственности, ВРИ: предпринимательство). Возможно использование под ресторан, кафе, гостиницу, медицинский центр, стоматологию, учебный центр ,офис компании, магазин.
Чтобы получить ПОДРОБНУЮ ПРЕЗЕНТАЦИЮ С ПЛАНИРОВКОЙ И ФОТОГРАФИЯМИ на этот объект, звоните. Высылаем в течение 15 минут по запросу! |
|
| Доп. услуги: | - возможна продажа в кредит |
| Контактная информация | |
| Лот №: | 1070178 |
| Контактное лицо: | Юлия |
| Телефон: | 8 (495) 822-78-71 доб.244 |


