Описание объекта лот №: 1069541
| Возможное использование: | Производство Склады с офисом Склады Теплые склады |
| Операция: | Аренда |
| Тип аренды: | Прямая аренда |
| Площадь: | 1600 кв. м |
| Этаж: | 1 |
| Местоположение | |
| Город: | Балашиха, Салтыковка |
| Улица: | Горьковское шоссе |
| ИФНС | № 5001 |
| Стоимость и условия | |
| Цена: | 1 760 000 руб. в месяц + НДС 13 200 руб. за 1м2 в год + НДС Сообщить о снижении цены ![]() |
| Форма налогообложения собственника: | НДС |
| Обеспечительный платеж: | 1 месяц |
| Эксплуатационные расходы включены: | ✓ |
| Характеристики | |
| Тип здания: | Складские комплексы |
| Отдельный вход: | ✓ |
| Этажность здания: | 1 |
| Возможность подъезда фуры: | ✓ |
| Наличие ж/д ветки: | ✓ |
| Круглосуточный доступ: | ✓ |
| Наличие паркинга: | ✓ |
| Кол-во парковочных мест: | 30 |
| Тип окон: | маленькие |
| Электрическая мощность, кВт: | 70 |
| Описание | |
|
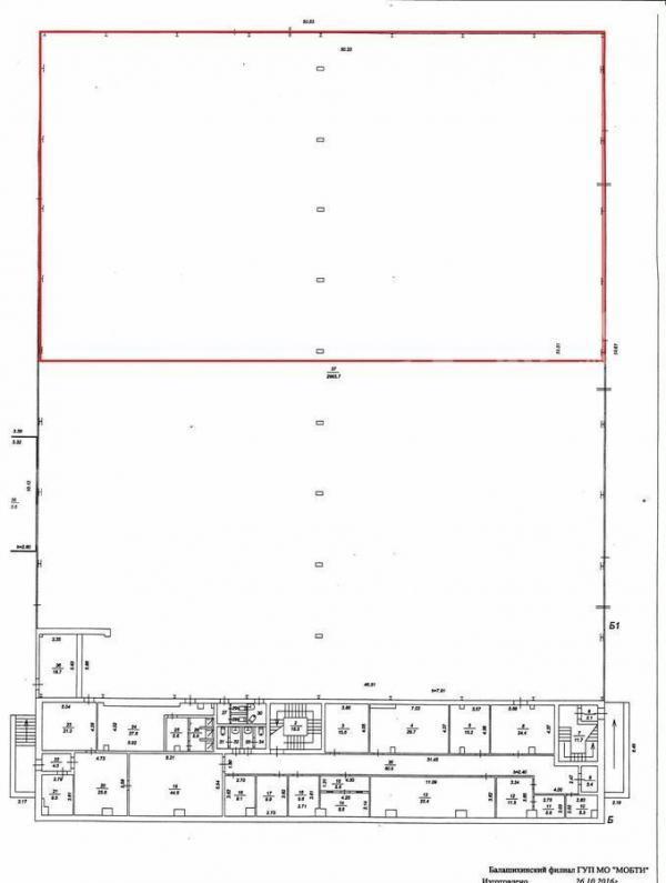
Лот №1069541 Предлагается в аренду современное производственно-складское помещение общей площадью 1600 м² в здании, расположенное на первом этаже. Объект находится в престижном центральном районе города Балашиха, напротив железнодорожной станции, что обеспечивает отличную транспортную доступность (8 км от мкад). Имеется удобный выезд на федеральную трассу М7 и Щелковское шоссе, а также преимущество сложившегося торгово-промышленного окружения и развитой инфраструктуры. Площадь складского пространства составляет 1500м², под вспомогательные офисные помещения, отведено 100м². Помещение оборудовано центральными коммуникациями, отоплением и электричеством мощностью до 70 кВт. Основные параметры: высота потолков 8,0 метров (в коньке 10 метров), антипылевое покрытие пола, ворота в ноль и пожарная система, включающая сигнализацию и гидранты. Территория находится под охраной с круглосуточным бесплатным въездом. Для клиентов предусмотрена удобная парковочная площадка, рассчитанная на размещение как большегрузного, так и легкового транспорта. Помещение подходит для широкого спектра применений, включая такие профили: Склад, Фулфилмент, Склад для маркетплейсов, Хранение, Переупаковка, Комплектация, Фасовка, Производство, Логистический терминал, Распределительный центр, Склад для грузов, Кросс-докинг, Сборка изделий, комплектующих, Дооснащение продукции, Монтаж / демонтаж оборудования, Тестирование и проверка работоспособности техники, Ремонт и сервисное обслуживание на складе, Перемаркировка и ретейлинг упаковки и другие. Стоимость аренды: 13 200 руб/м2/год (1 760 000 руб. в месяц), НДС оплачивается дополнительно. В цену включено: эксплуатационные расходы. В цену не включено: затраты на электричество, коммунальные расходы, уборка.
Чтобы получить ПОДРОБНУЮ ПРЕЗЕНТАЦИЮ С ПЛАНИРОВКОЙ И ФОТОГРАФИЯМИ на этот объект, звоните. Высылаем в течение 15 минут по запросу! |
|
| Контактная информация | |
| Лот №: | 1069541 |
| Контактное лицо: | Алексей Владимирович |
| Телефон: | 8 (495) 822-78-71 доб.217 |


