Описание объекта лот №: 1069290
| Возможное использование: | Свободное назначение Аптеки Банки Бытовые услуги Кафе/рестораны Магазины Медцентры Нотариусы/турфирмы Офисы Салоны красоты Фитнес Фотостудии Шоурумы |
| Операция: | Аренда |
| Тип аренды: | Прямая аренда |
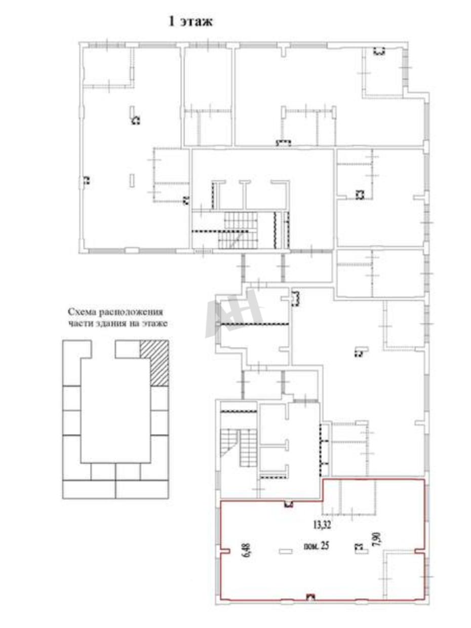
| Площадь: | 94.5 кв. м |
| Этаж: | 1 |
| Местоположение | |
| Город: | Коммунарка, Щербинка |
| Метро: | Потапово, Улица Горчакова, Бунинская аллея |
| Улица: | Калужское шоссе |
| ИФНС | № 7751 |
| Стоимость и условия | |
| Цена: | 189 000 руб. в месяц 24 000 руб. за 1м2 в год Сообщить о снижении цены ![]() |
| Форма налогообложения собственника: | НДС |
| Обеспечительный платеж: | 1 месяц |
| Характеристики | |
| Тип здания: | Жилые дома |
| Отдельный вход: | ✓ |
| Этажность здания: | 14 |
| Круглосуточный доступ: | ✓ |
| Наличие паркинга: | ✓ |
| Тип окон: | витринные |
| Электрическая мощность, кВт: | 15 |
| Описание | |
|
Лот №1069290 Сдаётся в аренду помещение свободного назначения площадью 94.5 м2 в жилом комплексе "Скандинавия" класса комфорт+, состоящего из 99 корпусов и 20 037 квартир, с отдельным входом с улицы напротив главного входа в школу № 338. В помещении огромные витринные окна в пол, открытая планировка, высота потолков 5.6 м, позволяющая сделать антресоль и увеличить полезную площадь помещения, эл. мощность 15 кВт с возможностью увеличения. Отлично подойдёт под магазин, шоурум, аптеку, отделение банка, офис, кафе, образовательную или творческую деятельность для детей и взрослых, салон красоты, фитнес-студию, медцентр, пункт выдачи заказов, услуги населению и другие виды коммерческого использования. Стоимость аренды: 24 000 руб/м2/год (189 000 руб. в месяц). В цену не включено: затраты на электричество, коммунальные расходы, эксплуатационные расходы.
Чтобы получить ПОДРОБНУЮ ПРЕЗЕНТАЦИЮ С ПЛАНИРОВКОЙ И ФОТОГРАФИЯМИ на этот объект, звоните. Высылаем в течение 15 минут по запросу!
Уважаемые коллеги, к сожалению мы не работаем по этому объекту с посредниками, но у нас есть партнерская программа по другим объектам! |
|
| Контактная информация | |
| Лот №: | 1069290 |
| Контактное лицо: | Сергей Федорович |
| Телефон: | 8 (495) 822-78-71 доб.218 |


