Описание объекта лот №: 1068048
| Возможное использование: | Склады Производство Теплые склады |
| Операция: | Аренда |
| Тип аренды: | Прямая аренда |
| Площадь: | 2500 кв. м |
| Этаж: | 1 |
| Местоположение | |
| Город: | Жуковский, Быково |
| Улица: | Новорязанское шоссе |
| ИФНС | № 5040 |
| Стоимость и условия | |
| Цена: | 1 250 000 руб. в месяц 6 000 руб. за 1м2 в год Сообщить о снижении цены ![]() |
| Обеспечительный платеж: | 1 месяц |
| Эксплуатационные расходы включены: | ✓ |
| Характеристики | |
| Отдельный вход: | ✓ |
| Этажность здания: | 1 |
| Возможность подъезда фуры: | ✓ |
| Круглосуточный доступ: | ✓ |
| Наличие паркинга: | ✓ |
| Электрическая мощность, кВт: | 50 |
| Описание | |
|
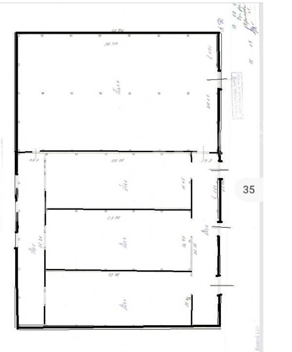
Лот №1068048 Сдается в прямую аренду производственно-складское здание общей площадью 2500 м2. Конструктив здания c габаритами прямоугольника 61 м х43 м: сварные несущие металлоконструкции,обшитые жб панелями стены и кровля. Пол - бетон с нагрузкой 5 тн/м2, рабочая высота потолка 7 м, четверо ворот 4х 4,3 м. Функционально разделен на 4 секции -каждая секция со своими воротами ( см план здания) В настоящее время здание отапливается арендатором пеллетным котлом. Водоподведение центральное, электричество к Зданию подведено. Cдается целиком. Грузовой сервис Собственником не рассматривается. Стоимость аренды: 6 000 руб/м2/год (1 250 000 руб. в месяц). В цену включено: эксплуатационные расходы. В цену не включено: затраты на электричество, коммунальные расходы, уборка.
Чтобы получить ПОДРОБНУЮ ПРЕЗЕНТАЦИЮ С ПЛАНИРОВКОЙ И ФОТОГРАФИЯМИ на этот объект, звоните. Высылаем в течение 15 минут по запросу!
Уважаемые коллеги, к сожалению мы не работаем по этому объекту с посредниками, но у нас есть партнерская программа по другим объектам! |
|
| Контактная информация | |
| Лот №: | 1068048 |
| Контактное лицо: | Николай Васильевич |
| Телефон: | 8 (495) 822-78-71 доб.241 |


