Описание объекта лот №: 1064203
| Возможное использование: | Офисы |
| Операция: | Аренда |
| Тип аренды: | Прямая аренда |
| Площадь: | 89 кв. м |
| Этаж: | 1 |
| Местоположение | |
| Округ: | ЦАО |
| Метро: | Сухаревская, Проспект Мира, Цветной бульвар |
| От метро: | 7 мин. пешком |
| Улица: | Гиляровского ул |
| ИФНС | № 7702 |
| Стоимость и условия | |
| Цена: | 226 995 руб. в месяц 30 606 руб. за 1м2 в год Сообщить о снижении цены ![]() |
| Форма налогообложения собственника: | НДС |
| Обеспечительный платеж: | 1 месяц |
| Коммунальные услуги включены: | ✓ |
| Эксплуатационные расходы включены: | ✓ |
| Электроэнергия включена: | ✓ |
| Характеристики | |
| Тип здания: | Административные здания |
| Этажность здания: | 3 |
| Наличие кондиционирования: | ✓ |
| Наличие пропускной системы: | ✓ |
| Наличие паркинга: | ✓ |
| Кол-во парковочных мест: | 1 |
| Тип окон: | обычные |
| Описание | |
|
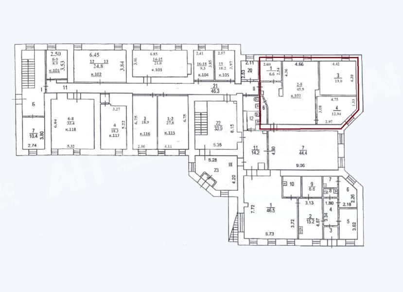
Лот №1064203 Предлагается в аренду офисный блок расположенный на 1-ом этаже площадью 89 кв.м в офисном здании класса Б. Офис смешанной планировки после ремонта и оборудован системой кондиционирования. Прямая аренда с предоставлением юр-адреса. 7 минут пешком до м. Проспект Мира. Офис будет готов к въезду с 15-го апреля. Стоимость аренды: 30 606 руб/м2/год (226 995 руб. в месяц). В цену включено: затраты на электричество, коммунальные расходы, эксплуатационные расходы. В цену не включено: уборка.
Чтобы получить ПОДРОБНУЮ ПРЕЗЕНТАЦИЮ С ПЛАНИРОВКОЙ И ФОТОГРАФИЯМИ на этот объект, звоните. Высылаем в течение 15 минут по запросу! |
|
| Контактная информация | |
| Лот №: | 1064203 |
| Контактное лицо: | Роман Михайлович |
| Телефон: | 8 (495) 822-78-71 доб.251 |


