Описание объекта лот №: 1061089
| Возможное использование: | Свободное назначение Банки Бытовые услуги Магазины Нотариусы/турфирмы Офисы Салоны красоты Фотостудии Шоурумы |
| Операция: | Аренда |
| Тип аренды: | Прямая аренда |
| Площадь: | 187 кв. м |
| Этаж: | 4 |
| Местоположение | |
| Округ: | ЗАО |
| Метро: | Смоленская ФЛ, Смоленская АПЛ, Киевская |
| От метро: | 2 мин. пешком |
| Улица: | Смоленская пл |
| ИФНС | № 7704 |
| Стоимость и условия | |
| Цена: | 778 450 руб. в месяц + НДС 49 954 руб. за 1м2 в год + НДС Сообщить о снижении цены ![]() |
| Форма налогообложения собственника: | НДС |
| Обеспечительный платеж: | 2 месяца |
| Эксплуатационные расходы включены: | ✓ |
| Характеристики | |
| Тип здания: | Торговые центры |
| Этажность здания: | 12 |
| Наличие кондиционирования: | ✓ |
| Наличие лифта: | ✓ |
| Круглосуточный доступ: | ✓ |
| Наличие общепита в здании: | ✓ |
| Тип окон: | витринные |
| Описание | |
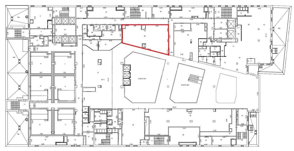
|
Лот №1061089 Предлагается в аренду помещение свободного назначения общей площадью 187 квадратных метра на 4 этаже в ТРЦ класса «А» «Смоленский Пассаж – 2». Объект обладает исключительно удобным расположением в непосредственной близости от Садового кольца. Расстояние до Кремля составляет пять минут на автомобиле, а станция метро «Смоленская» находится в двух минутах ходьбы. Помещение относится к представительскому классу и имеет смешанную планировку. В состав входят большие светлые кабинеты, создающие комфортную рабочую атмосферу. Офис полностью готов к заезду и началу работы. Стоимость аренды: 49 954 руб/м2/год (778 450 руб. в месяц), НДС оплачивается дополнительно. В цену включено: эксплуатационные расходы. В цену не включено: затраты на электричество, коммунальные расходы, уборка.
Чтобы получить ПОДРОБНУЮ ПРЕЗЕНТАЦИЮ С ПЛАНИРОВКОЙ И ФОТОГРАФИЯМИ на этот объект, звоните. Высылаем в течение 15 минут по запросу! |
|
| Контактная информация | |
| Лот №: | 1061089 |
| Контактное лицо: | Ирина Владимировна |
| Телефон: | 8 (495) 822-78-71 доб.204 |


