Описание объекта лот №: 1034320
| Возможное использование: | Офисы |
| Операция: | Аренда |
| Тип аренды: | Прямая аренда |
| Площадь: | 263.7 кв. м |
| Этаж: | 7 |
| Местоположение | |
| Город: | Красногорск, Химки |
| Метро: | Мякинино, Строгино, Трикотажная (МЦД) |
| Улица: | Волоколамское шоссе |
| ИФНС | № 5024 |
| Стоимость и условия | |
| Цена: | 737 261 руб. в месяц + НДС 33 550 руб. за 1м2 в год + НДС Сообщить о снижении цены ![]() |
| Форма налогообложения собственника: | НДС |
| Обеспечительный платеж: | 1 месяц |
| Коммунальные услуги включены: | ✓ |
| Эксплуатационные расходы включены: | ✓ |
| Электроэнергия включена: | ✓ |
| Характеристики | |
| Тип здания: | Бизнес центры класса А |
| Этажность здания: | 12 |
| Наличие кондиционирования: | ✓ |
| Наличие лифта: | ✓ |
| Наличие пропускной системы: | ✓ |
| Кол-во парковочных мест: | 10 |
| Тип окон: | витринные |
| Описание | |
|
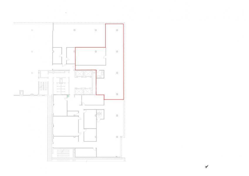
Лот №1034320 В аренду предлагается представительный офисный блок общей площадью 263.73 квадратных метра, расположенный на 7 этаже бизнес-центра класса «А» «Кубик». Планировка офиса кабинетного типа выполнена с качественной отделкой. Объект отличается удобной транспортной доступностью, находясь в пешей шаговой доступности от станции метро «Мякинино». Помещение полностью готово к заселению и работе. Стоимость аренды: 33 550 руб/м2/год (737 262 руб. в месяц), НДС оплачивается дополнительно. В цену включено: затраты на электричество, коммунальные расходы, эксплуатационные расходы. В цену не включено: уборка.
Чтобы получить ПОДРОБНУЮ ПРЕЗЕНТАЦИЮ С ПЛАНИРОВКОЙ И ФОТОГРАФИЯМИ на этот объект, звоните. Высылаем в течение 15 минут по запросу! |
|
| Контактная информация | |
| Лот №: | 1034320 |
| Контактное лицо: | Ирина Владимировна |
| Телефон: | 8 (495) 822-78-71 доб.204 |


