Описание объекта лот №: 1034313
| Возможное использование: | Свободное назначение Бизнес |
| Операция: | Продажа бизнеса |
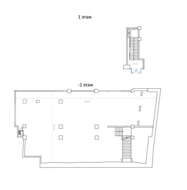
| Площадь: | 380.5 кв. м |
| Этаж: | 1 |
| Местоположение | |
| Округ: | ЦАО |
| Метро: | Менделеевская, Белорусская, Достоевская |
| Улица: | Новослободская ул |
| ИФНС | № 7707 |
| Стоимость и условия | |
| Цена: |
145 000 000 руб. Сообщить о снижении цены
|
| Форма налогообложения собственника: | НДС |
| Срок окупаемости: | 8 лет |
| Обеспечительный платеж: | Без залога |
| Эксплуатационные расходы включены: | ✓ |
| Характеристики | |
| Тип здания: | Административные здания |
| Отдельный вход: | ✓ |
| Этажность здания: | 7 |
| Круглосуточный доступ: | ✓ |
| Наличие паркинга: | ✓ |
| Тип окон: | витринные |
| Описание | |
|
Лот №1034313 Предлагается на продажу Готовый арендный бизнес с арендатором в ЦАО у метро Новослободская. Этажи: -1,1. Площадь 380,5м2. Высота потолков: 3,5м. Арендатор: Сетевой бар DUKH. Доход от аренды: 1 274 200 в месяц. Доход в год: 15 290 400 руб. Срок договора - 10 лет. Индексация: ИПЦ Электрическая мощность: 100Квт. Здание находится на первой фасадной линии Новослободской улицы. В 50 метрах (1 минута пешком) станция метро "Менделеевская" В 200 метрах (3 минуты пешком) станция "Новослободская" Интенсивный пешеходный и автомобильный трафик вдоль помещения. Здание находится в оживленном деловом районе — одной из самых развитых, дорогих и востребованных бизнес-локаций Москвы. В непосредственной близости от здания находятся 8 бизнес-центров и 4 крупных федеральных университета: РГГУ, РХТУ, МГТУ и РУТ (МИИТ). В предмет продажи не входят торговые помещения, расположенные на части 1 этажа и подвала.Проект может быть реализован как комплекс апартаментов с просторным лобби. Показ организуем в любое удобное для вас время!
Чтобы получить ПОДРОБНУЮ ПРЕЗЕНТАЦИЮ С ПЛАНИРОВКОЙ И ФОТОГРАФИЯМИ на этот объект, звоните. Высылаем в течение 15 минут по запросу! |
|
| Доп. услуги: | - возможна продажа в кредит |
| Контактная информация | |
| Лот №: | 1034313 |
| Контактное лицо: | Лидия Владимировна |
| Телефон: | 8 (495) 822-78-71 доб.240 |


