Описание объекта лот №: 1028866
| Возможное использование: | Свободное назначение Аптеки Банки Бытовые услуги Магазины Медцентры Офисы Салоны красоты Шоурумы Новостройки |
| Операция: | Продажа |
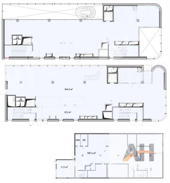
| Площадь: | 1479.7 кв. м |
| Местоположение | |
| Округ: | СЗАО |
| Метро: | ЦСКА, Динамо, Петровский Парк |
| Улица: | Ходынский б-р |
| ИФНС | № 7714 |
| Стоимость и условия | |
| Цена: |
1 756 650 000 руб. Сообщить о снижении цены
|
| Характеристики | |
| Тип здания: | Жилые дома |
| Этажность здания: | 23 |
| Наличие лифта: | ✓ |
| Наличие паркинга: | ✓ |
| Электрическая мощность, кВт: | 295 |
| Срок сдачи: | 2027 г. (3 кв.) |
| Описание | |
|
Лот №1028866 Продажа коммерческого помещения в новостройке: 1479,70 кв. м., 0 этаж в комплексе БЦ STONE Ходынка, 1 очередь, корп.1, сдача: 3кв. , этажей: 23, адрес Ходынский бул., д. 6/2, Застройщик: STONE. Премиальный офисный квартал — это крупный офисный проект рядом с торгово-развлекательным комплексом «Авиапарк» на Ходынском поле. Срок сдачи: 3 кв. 2027 г
Чтобы получить ПОДРОБНУЮ ПРЕЗЕНТАЦИЮ С ПЛАНИРОВКОЙ И ФОТОГРАФИЯМИ на этот объект, звоните. Высылаем в течение 15 минут по запросу! |
|
| Доп. услуги: | - возможна продажа в кредит |
| Контактная информация | |
| Лот №: | 1028866 |
| Контактное лицо: | НОВОСТРОЙКИ |
| Телефон: | 8 (495) 822-78-71 доб.211 |


