Описание объекта лот №: 1027708
| Возможное использование: | Свободное назначение Аптеки Банки Бытовые услуги Ломбарды Кафе/рестораны Магазины Медцентры Нотариусы/турфирмы Офисы Салоны красоты Столовые Фитнес Фотостудии Шоурумы |
| Операция: | Продажа |
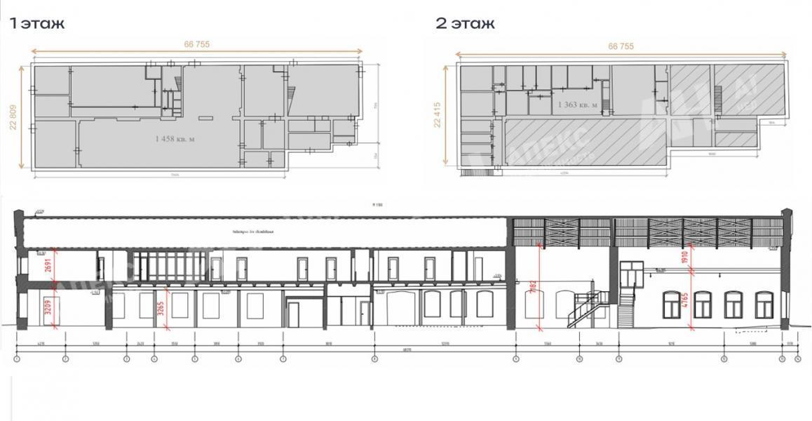
| Площадь: | 2189 кв. м |
| Этаж: | 1 - 2-й |
| Местоположение | |
| Округ: | СЗАО |
| Метро: | Белорусская, Улица 1905 года, Краснопресненская |
| От метро: | 9 мин. пешком |
| Улица: | Пресненский Вал ул |
| ИФНС | № 7703 |
| Стоимость и условия | |
| Цена: |
1 550 000 000 руб. Сообщить о снижении цены
|
| Форма налогообложения собственника: | НДС |
| Срок окупаемости: | 10 лет |
| Характеристики | |
| Тип здания: | Административные здания |
| Отдельный вход: | ✓ |
| Этажность здания: | 2 |
| Наличие паркинга: | ✓ |
| Кол-во парковочных мест: | 100 |
| Тип окон: | витринные |
| Электрическая мощность, кВт: | 320 |
| Описание | |
|
Лот №1027708 Продажа 2189 м2 в уникальном здании вблизи м.Белорусская (9 мин пешком). Объект расположен в центральной части Москвы, на территории элитного жилого ансамбля Republic по адресу улица Пресненский Вал в Пресненском районе. Комплекс Republic представляет собой ансамбль из десяти многоэтажных корпусов, где проживает более 8 тысяч человек. В непосредственной близости функционируют деловые центры с рабочим штатом около 10,5 тысячи человек, а также спортивные сооружения, клиники, музеи, театральные площадки и благоустроенные парковые зоны. Транспортная доступность объекта является весьма удобной. Автомобильный выезд на Третье транспортное кольцо, 1-ю Тверскую-Ямскую и основные городские артерии занимает менее 25 минут. Садовое кольцо расположено в 9 минутах езды, Бульварное — в 14 минутах. Архитектурное исполнение здания отражает каноны промышленной классики рубежа XIX–XX столетий и отличается краснокирпичным фасадом с декоративными неоготическими деталями. Не памятник. Внутреннее пространство характеризуется открытыми планировками и впечатляющей высотой потолков от 2.7 до 7 метров, что формирует особый пространственный колорит. Все коммуникации. от 320 кВт. Продажа по ДКП здание и земельный участок (пятно под зданием).
Чтобы получить ПОДРОБНУЮ ПРЕЗЕНТАЦИЮ С ПЛАНИРОВКОЙ И ФОТОГРАФИЯМИ на этот объект, звоните. Высылаем в течение 15 минут по запросу! |
|
| Доп. услуги: | - возможна продажа в кредит |
| Контактная информация | |
| Лот №: | 1027708 |
| Контактное лицо: | Алексей Владимирович |
| Телефон: | 8 (495) 822-78-71 доб.217 |


