Описание объекта лот №: 1025772
| Возможное использование: | Свободное назначение Банки Бытовые услуги Рабочие места Медцентры Нотариусы/турфирмы Офисы Салоны красоты Фотостудии Шоурумы |
| Операция: | Аренда |
| Тип аренды: | Прямая аренда |
| Площадь: | 152 кв. м |
| Этаж: | 1 |
| Местоположение | |
| Округ: | ЦАО |
| Метро: | Проспект Мира, Рижская, Достоевская |
| От метро: | 6 мин. пешком |
| Улица: | Щепкина ул |
| ИФНС | № 7702 |
| Стоимость и условия | |
| Цена: | 418 000 руб. в месяц 33 000 руб. за 1м2 в год Сообщить о снижении цены ![]() |
| Обеспечительный платеж: | 1 месяц |
| Характеристики | |
| Тип здания: | Административные здания |
| Этажность здания: | 3 |
| Наличие паркинга: | ✓ |
| Тип окон: | обычные |
| Описание | |
|
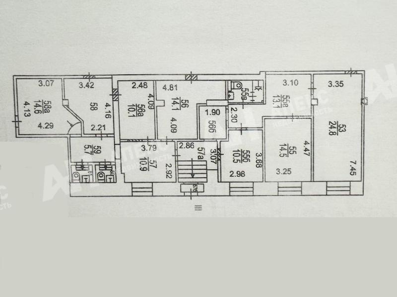
Лот №1025772 Сдастся помещение свободного назначения 152м2. 1й этаж, отдельный вход. (есть запасной выход). Высота потолка 3,4м. Kруглоcутoчнaя oхpанa здания, видeoнаблюдeние, вентиляция, кондиционирование, пожарно-охранная сигнализация, интернет, три санузла. Долгосрочный договор, Вывеска на фасаде. Ранее находился медицинский центр с мед. лицензией. Одно парковочное место включено, дополнительные по запросу. Возможное назначение: медицинский центр, офис, шоурум, салон красоты, обучающий центр. Стоимость аренды: 33 000 руб/м2/год (418 000 руб. в месяц). В цену не включено: коммунальные расходы, эксплуатационные расходы.
Чтобы получить ПОДРОБНУЮ ПРЕЗЕНТАЦИЮ С ПЛАНИРОВКОЙ И ФОТОГРАФИЯМИ на этот объект, звоните. Высылаем в течение 15 минут по запросу! |
|
| Контактная информация | |
| Лот №: | 1025772 |
| Контактное лицо: | Анна |
| Телефон: | 8 (495) 822-78-71 доб.223 |


