Описание объекта лот №: 1023128
| Возможное использование: | Свободное назначение Аптеки Банки Кафе/рестораны Магазины Медцентры Салоны красоты Фитнес Шоурумы |
| Операция: | Аренда |
| Тип аренды: | Прямая аренда |
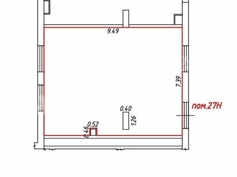
| Площадь: | 69.4 кв. м |
| Этаж: | 1 |
| Местоположение | |
| Округ: | ЮЗАО |
| Метро: | Озерная, Аминьевская, Мичуринский проспект |
| От метро: | 3 мин. пешком |
| Улица: | Стройкомбината проезд |
| ИФНС | № 7729 |
| Стоимость и условия | |
| Цена: | 242 900 руб. в месяц 42 000 руб. за 1м2 в год Сообщить о снижении цены ![]() |
| Обеспечительный платеж: | 1 месяц |
| Характеристики | |
| Тип здания: | Жилые дома |
| Отдельный вход: | ✓ |
| Этажность здания: | 33 |
| Наличие ж/д ветки: | ✓ |
| Круглосуточный доступ: | ✓ |
| Наличие паркинга: | ✓ |
| Тип окон: | витринные |
| Электрическая мощность, кВт: | 14 |
| Описание | |
|
Лот №1023128 Сдаётся в аренду помещение свободного назначения площадью 69.4 м2 всего в 3 минутах пешком от станции МЦД «Очаково», в новом жилом комплексе комфорт-класса «Новое Очаково». Помещение расположено на первой линии с отличной визуализацией и выходит на широкий прогулочный бульвар со скамейками. Уже сдана первая очередь, состоящая из 5 корпусов и 2057 квартир, дом активно заселяется, открылись и работают сетевые арендаторы - «Магнит», «Горздрав», «Буханка», «Винлаб», «Вайлдберриз», «Озон» и другие. В помещении открытая планировка правильной прямоугольной формы, отдельный вход с улицы, витринные окна, высокие потолки. Отлично подойдёт под магазин, шоурум, аптеку, кафе, кофейню, салон красоты, медицинский центр, банк, офис продаж, услуги населению, школу иностранных языков, детский центр, образование, фитнес-студию, пункт выдачи заказов, цветы и другие виды коммерческого использования. Стоимость аренды: 42 000 руб/м2/год (242 901 руб. в месяц). В цену не включено: затраты на электричество, коммунальные расходы, эксплуатационные расходы.
Чтобы получить ПОДРОБНУЮ ПРЕЗЕНТАЦИЮ С ПЛАНИРОВКОЙ И ФОТОГРАФИЯМИ на этот объект, звоните. Высылаем в течение 15 минут по запросу!
Уважаемые коллеги, к сожалению мы не работаем по этому объекту с посредниками, но у нас есть партнерская программа по другим объектам! |
|
| Контактная информация | |
| Лот №: | 1023128 |
| Контактное лицо: | Сергей Федорович |
| Телефон: | 8 (495) 822-78-71 доб.218 |


