Описание объекта лот №: 1022776
| Возможное использование: | Свободное назначение Офисы |
| Операция: | Аренда |
| Тип аренды: | Прямая аренда |
| Площадь: | 80 кв. м |
| Этаж: | 3 |
| Местоположение | |
| Округ: | САО |
| Метро: | Сокол, ЦСКА, Аэропорт |
| От метро: | 15 мин. пешком |
| Улица: | Ленинградский пр-кт |
| ИФНС | № 7714 |
| Стоимость и условия | |
| Цена: | 366 667 руб. в месяц 55 000 руб. за 1м2 в год Сообщить о снижении цены ![]() |
| Форма налогообложения собственника: | НДС |
| Обеспечительный платеж: | 2 месяца |
| Эксплуатационные расходы включены: | ✓ |
| Характеристики | |
| Тип здания: | Бизнес центры класса B |
| Этажность здания: | 6 |
| Наличие кондиционирования: | ✓ |
| Наличие лифта: | ✓ |
| Наличие пропускной системы: | ✓ |
| Наличие паркинга: | ✓ |
| Наличие общепита в здании: | ✓ |
| Описание | |
|
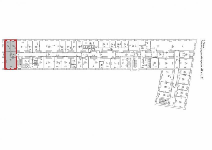
Лот №1022776 БЦ Авион. Офис на 3 этаже общей площадью 80 м2, расположено в 15 мин от м Сокол. Комнаты с окнами. Качественная отделка. Есть лифт. Объект расположен в пятнадцати минутах ходьбы от станции метро «Сокол». Помещение имеет отдельный вход и оснащено лифтом. Для обеспечения безопасности функционирует круглосуточная система контроля доступа. Инженерное оснащение включает центральную систему кондиционирования и приточно-вытяжную вентиляцию. Установлена автоматическая система пожаротушения, использующая воду и газ. Стоимость аренды: 55 000 руб/м2/год (366 667 руб. в месяц). В цену включено: эксплуатационные расходы. В цену не включено: затраты на электричество, коммунальные расходы, уборка.
Чтобы получить ПОДРОБНУЮ ПРЕЗЕНТАЦИЮ С ПЛАНИРОВКОЙ И ФОТОГРАФИЯМИ на этот объект, звоните. Высылаем в течение 15 минут по запросу! |
|
| Контактная информация | |
| Лот №: | 1022776 |
| Контактное лицо: | Ринат |
| Телефон: | 8 (495) 822-78-71 доб.232 |


