Описание объекта лот №: 1019967
| Возможное использование: | Свободное назначение Аптеки Банки Бытовые услуги Магазины Медцентры Офисы Салоны красоты Шоурумы Новостройки |
| Операция: | Продажа |
| Площадь: | 164.4 кв. м |
| Этаж: | 7 |
| Местоположение | |
| Округ: | ЦАО |
| Метро: | Тестовская (МЦД), Шелепиха (МЦК), Международная |
| Улица: | Шелепихинский туп |
| ИФНС | № 7703 |
| Стоимость и условия | |
| Цена: |
110 802 638 руб. Сообщить о снижении цены
|
| Характеристики | |
| Тип здания: | Жилые дома |
| Этажность здания: | 64 |
| Наличие лифта: | ✓ |
| Наличие паркинга: | ✓ |
| Срок сдачи: | 2029 г. (4 кв.) |
| Описание | |
|
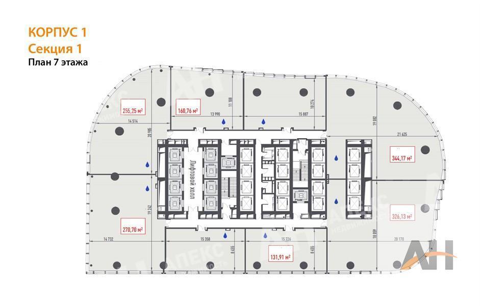
Лот №1019967 Предлагается к продаже коммерческое помещение площадью 164,42 кв. м на 7 этаже в строящемся комплексе Top tower (1 очередь, корпус 1). Объект расположен по адресу: Шелепихинский тупик, д. 17/1. Общее количество этажей в здании составляет 64. Помещение имеет свободное функциональное назначение и может быть использовано под широкий спектр видов деятельности: медицинский центр, салон красоты, парикмахерская, офис, ресторан, бар, банк, предприятия бытового обслуживания, торговые объекты или магазин. Высота потолков составляет 3,90 метра. Сдача объекта в эксплуатацию запланирована на четвертый квартал 2029 года.
Чтобы получить ПОДРОБНУЮ ПРЕЗЕНТАЦИЮ С ПЛАНИРОВКОЙ И ФОТОГРАФИЯМИ на этот объект, звоните. Высылаем в течение 15 минут по запросу! |
|
| Доп. услуги: | - возможна продажа в кредит |
| Контактная информация | |
| Лот №: | 1019967 |
| Контактное лицо: | НОВОСТРОЙКИ |
| Телефон: | 8 (495) 822-78-71 доб.211 |


