Описание объекта лот №: 1018752
| Возможное использование: | Офисы |
| Операция: | Аренда |
| Тип аренды: | Прямая аренда |
| Площадь: | 153.7 кв. м |
| Этаж: | 3 |
| Местоположение | |
| Округ: | ЮАО |
| Метро: | Серпуховская, Шаболовская, Тульская |
| От метро: | 10 мин. пешком |
| Улица: | Павловская ул |
| ИФНС | № 7725 |
| Стоимость и условия | |
| Цена: | 294 592 руб. в месяц 23 000 руб. за 1м2 в год Сообщить о снижении цены ![]() |
| Форма налогообложения собственника: | НДС |
| Обеспечительный платеж: | 1 месяц |
| Эксплуатационные расходы включены: | ✓ |
| Характеристики | |
| Тип здания: | Бизнес центры класса B |
| Этажность здания: | 5 |
| Наличие лифта: | ✓ |
| Тип окон: | обычные |
| Описание | |
|
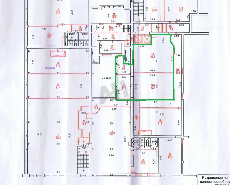
Лот №1018752 сдается в аренду офисное помещение на третьем этаже. В бизнес-центре класса «Б» Общая площадь 153.7 кв.м. Планировка смешанная: кофе поинт, два большиз зала. Окна выходят в атриум. Здание оснащено двумя пассажирскими лифтами, центральными системами кондиционирования и вентиляции. На этаже расположены санузлы. Обеспечена круглосуточная охрана и система контроля доступа. Офис обладает выгодным расположением: пешая доступность от станции метро «Серпуховская» составляет 860 метров. В шаговой доступности находятся продуктовые магазины, кафе с бизнес-ланчами, кофейни, банкоматы и театр Терезы Дуровой. Стоимость аренды: 23 000 руб/м2/год (294 592 руб. в месяц). В цену включено: эксплуатационные расходы. В цену не включено: затраты на электричество, коммунальные расходы, уборка.
Чтобы получить ПОДРОБНУЮ ПРЕЗЕНТАЦИЮ С ПЛАНИРОВКОЙ И ФОТОГРАФИЯМИ на этот объект, звоните. Высылаем в течение 15 минут по запросу! |
|
| Контактная информация | |
| Лот №: | 1018752 |
| Контактное лицо: | Дмитрий Викторович |
| Телефон: | 8 (495) 822-78-71 доб.220 |


