Описание объекта лот №: 1018006
| Возможное использование: | Офисы | |||||||||
| Операция: | Аренда | |||||||||
| Площадь: | 750 - 1620 кв. м | |||||||||
| Этаж: | 2 - 3-й | |||||||||
| Местоположение | ||||||||||
| Округ: | ВАО | |||||||||
| Метро: | Семеновская, Соколиная гора (МЦК), Измайлово (МЦК) | |||||||||
| От метро: | 15 мин. пешком | |||||||||
| Улица: | Кирпичная ул | |||||||||
| ИФНС | № 7719 | |||||||||
| Стоимость и условия | ||||||||||
| Цена: | от 1 372 500 до 2 964 600 руб. в месяц 21 960 руб. за 1м2 в год Сообщить о снижении цены
|
|||||||||
| Форма налогообложения собственника: | НДС | |||||||||
| Обеспечительный платеж: | 2 месяца | |||||||||
| Эксплуатационные расходы включены: | ✓ | |||||||||
| Характеристики | ||||||||||
| Тип здания: | Административные здания | |||||||||
| Этажность здания: | 6 | |||||||||
| Наличие кондиционирования: | ✓ | |||||||||
| Наличие лифта: | ✓ | |||||||||
| Наличие пропускной системы: | ✓ | |||||||||
| Наличие паркинга: | ✓ | |||||||||
| Описание | ||||||||||
|
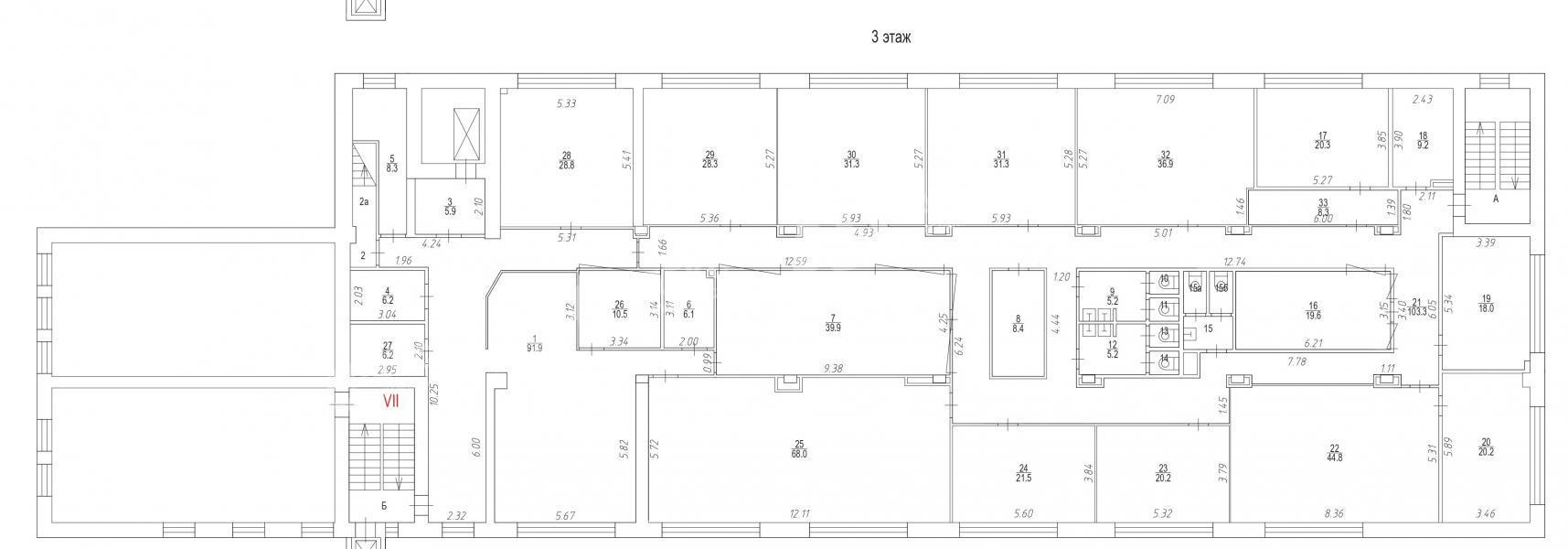
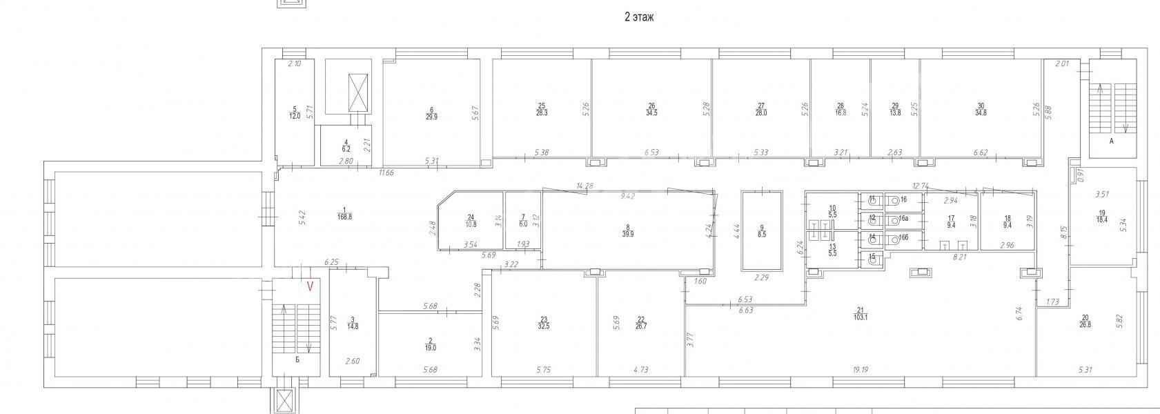
Лот №1018006 Аренда офисных этажей в районе Соколиная Гора ВАО. Ближайшая станция метро Семеновская. В непосредственной близости съезд на Измайловское шоссе в 1,5 км набережная Яузы, в 3 км ТТК. Предлагаемые блоки занимают целиком 2-й и 3-й этажи. Все помещения в идеальном состоянии - только что окончен косметический ремонт. Планировка смешанная - кабинеты разной площади, залы для коллективной работы, подсобные помещения, обустроенная кухня, с\у в достаточном количестве. Помещение свободно и готово к использованию. В указанную цену включены до 15 парковочных мест во дворе. Звоните, показ в удобное время по предварительной договорённости. Актуальные площади и цены (м2):
Стоимость аренды: 21 960 руб/м2/год. В цену включено: эксплуатационные расходы.
Чтобы получить ПОДРОБНУЮ ПРЕЗЕНТАЦИЮ С ПЛАНИРОВКОЙ И ФОТОГРАФИЯМИ на этот объект, звоните. Высылаем в течение 15 минут по запросу! |
||||||||||
| Контактная информация | ||||||||||
| Лот №: | 1018006 | |||||||||
| Контактное лицо: | Филипп | |||||||||
| Телефон: | 8 (495) 822-78-71 доб.261 | |||||||||


